Magnifique longère de plain-pied Coltainville
Description
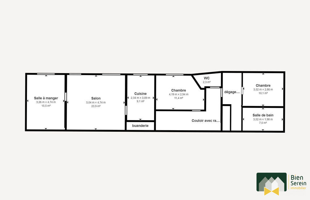
Bienvenue dans votre futur chez-vous ! Nous sommes ravis de vous présenter cette belle longère en exclusivité, bénéficiant de notre pack visibilité. Profitez de notre visite virtuelle, de photos haute qualité pour découvrir cette opportunité à saisir à Coltainville ! Découvrez cette maison composée comme suit : Au rez-de-chaussée : - Un salon, - Une salle à manger, - Une cuisine aménagée et équipée indépendante, - Un couloir avec rangement, - Deux chambres, - Une salle d'eau, - Un WC indépendant, À l'étage : - Un coin nuit / bureau ESPACE EXTÉRIEUR - Une cave, - Un hangar, - Un jardin, CÔTÉ CONFORT - Double vitrage PVC, - Grange pour stationnement, - Vivable de plain pied, - Volets roulants solaires. L'EMPLACEMENT Le village dispose d'une école accueillant les élèves de la maternelle au primaire. . Concernant les transports en commun, plusieurs gares sont accessibles en moins de 8 minutes en voiture, notamment celles de Chartres et de Saint-Prest. Les autoroutes A11 et les nationales N123 et N154 sont accessibles à moins de 10 minutes. Pour vos loisirs, un court de tennis est disponible à proximité. En ce qui concerne les commerces, vous trouverez une boulangerie, une boucherie charcuterie, une épicerie et un bureau de poste dans les communes voisines. N'hésitez pas à contacter votre agent au Noeud Pap' pour obtenir plus d'informations et visiter cette maison ! Honoraires à la charge du vendeur. Classe énergie E, Classe climat B Montant estimé des dépenses annuelles d'énergie pour un usage standard : entre 2212.00 € et 2992.00 € sur les années 2021, 2022 et 2023 (abonnements compris). Les informations sur les risques auxquels ce bien est exposé sont disponibles sur le site Géorisques : georisques.gouv.fr. Votre conseiller Bien Serein immobilier : Margot NYS Agent commercial (Entreprise individuelle) RSAC 883679029 TTC Numéro de mandat : 772 Honoraires à la charge du Vendeur Bien En copropriété : NON
Informations clés
- Prix 229 900 €
- Référence ParuVendu 772-BIENSEREIN28
- Nombre de pièces 4 pièces
- Surface 103 m²
- Date DPE 25/10/2025
- Classe énergie E
- Indice d’émissions de gaz à effet de serre B
- Dépenses énergétiques Montant moyen pour 2021 : 2 602 €
- Ce bien fait l'objet d'un état des risques. Les informations sur les risques auxquels ce bien est exposé sont disponibles sur le site Géorisques : https://www.georisques.gouv.fr
Diagnostic énergétique


Pour la nouvelle notation (DPE à partir de juillet 2021), c'est la plus mauvaise des deux performances (énergie, climat) qui est retenue.