Maison - 5 pièce(s) - 125 m² Couëron

PreviousNext

Description

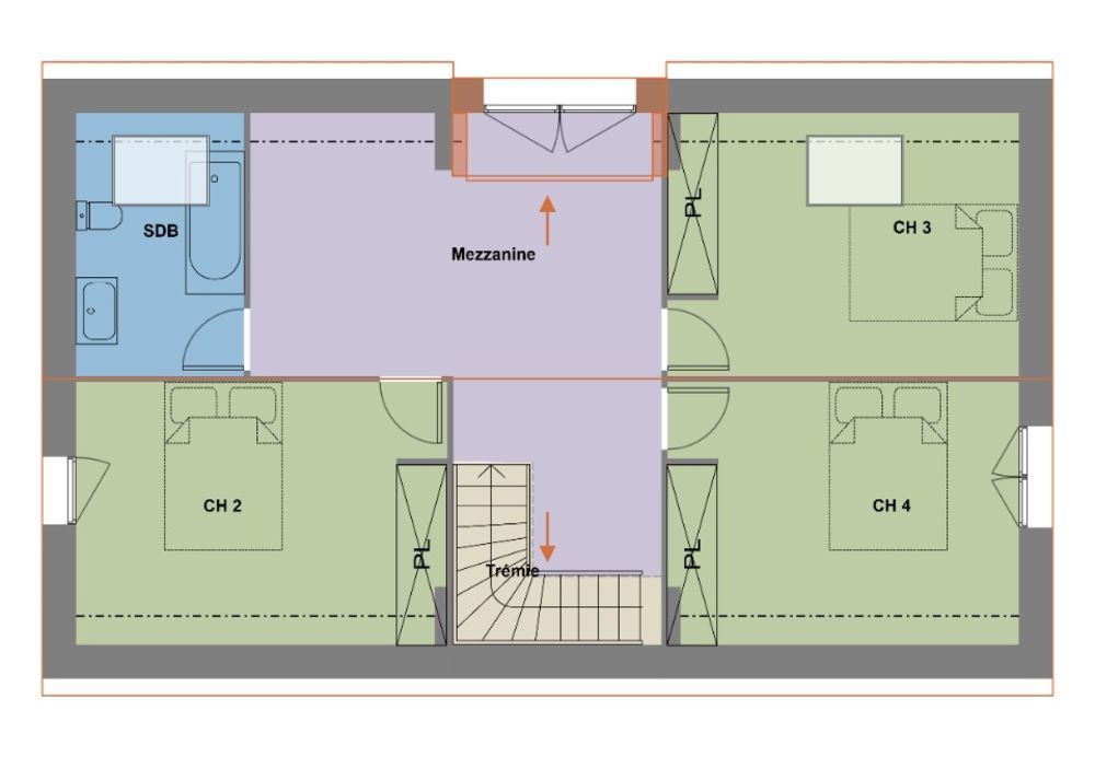
Couëron : maison F5 (125 m²) à vendre IDÉALEMENT SITUÉE - MAISON 5 PIÈCES NEUVE Sur le littoral atlantique, nous vous présentons cette maison de 5 pièces de 125 m² idéalement située dans Couëron (44220). C'est une maison de 2 niveaux. Elle se divise en quatre chambres, une cuisine et deux salles de bains. La maison est neuve. Le terrain de la propriété est de 600 m². Cette maison se trouve dans un secteur convoité. Tous les types d'établissements scolaires (maternelle, élémentaire et secondaire) y sont implantés. Niveau transports, il y a les gares Couëron, La Basse Indre-Saint-Herblain et Saint-Étienne-de-Montluc à moins de 10 minutes en voiture. On trouve une bibliothèque à proximité. Elle est proposée à l'achat pour 437 000 €. Prenez contact avec notre agence pour plus d'informations sur la maison. Maisons de l'Avenir Orvault vous accompagne dans toutes vos démarches et dans tous vos projets immobiliers. Nos offres de terrains sont proposées en collaboration avec nos partenaires fonciers pour des maisons dans le cadre de la loi du 10/12/1990, selon disponibilité. Surface habitable : 125m2. Nombre de pièces : 5. Nombre de chambres : 4. Prix terrain seul : 155000 euros. Terrain proposé par un partenaire foncier selon disponibilités et autorisation de publicité au prix de 155 000 €. Hors droit d'enregistrement et frais de notaire. Terrain + Maison proposés au prix de 437 000 € (Hors branchements et raccordements, papiers peints, peintures, revêtement de sol dans les chambres. Tarif modifiable sans préavis). Etiquette énergie : A. Différents modèles disponibles pour ce terrain. Assurances et garanties du constructeur (RC professionnelle, décennale, dommage ouvrage, garantie de remboursement de l'acompte, livraison à prix et délai convenu) : MAISONS DE L'AVENIR 17, rue Jules Verne 44700 Orvault Référence : ALB2451970_1 Bien En copropriété : non

Informations clés

  • Prix 437 000 €
  • Référence ParuVendu 1005376_1005127_3689271
  • Nombre de pièces 5 pièces
  • Surface 125 m²
  • Date DPE 01/01/1970
  • Classe énergie  A
  • Indice d’émissions de gaz à effet de serre  NC