Maison - 3 pièce(s) - 57 m² Créhen

PreviousNext

Description

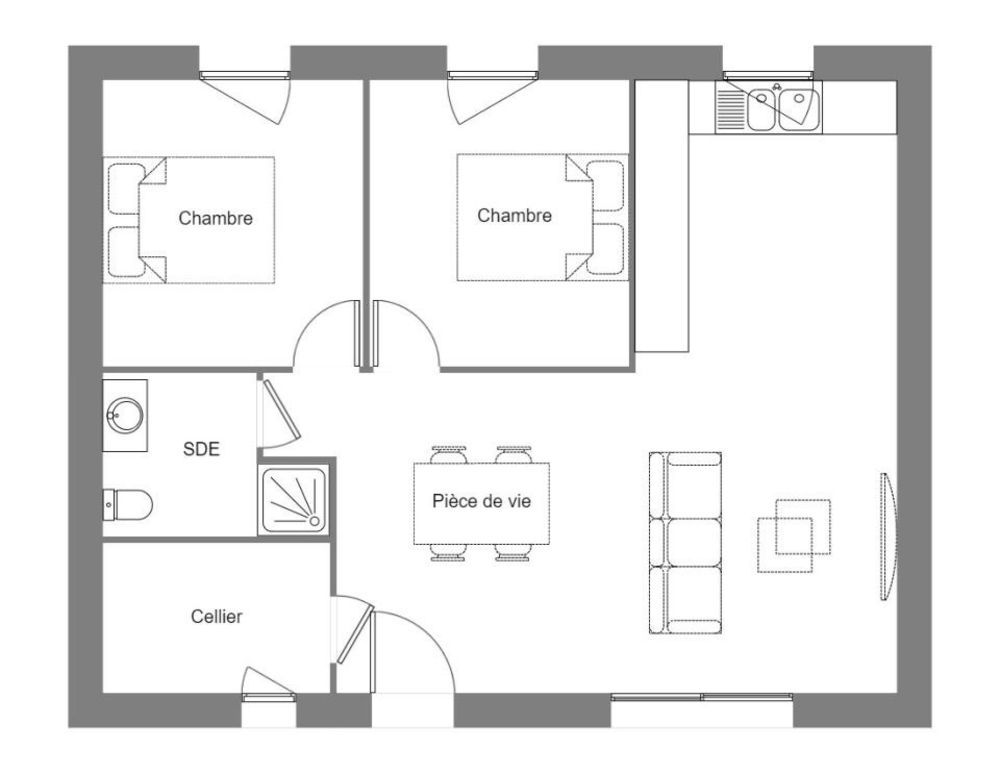
VENTE : maison de 3 pièces (57 m²) à Créhen IDÉALEMENT SITUÉE - PROCHE DE SAINT CAST LE GUILDO MAISON 3 PIÈCES NEUVE En vente : localisée à 14 km de la Manche et à 18 km de Saint-Malo, nous vous présentons cette maison de 3 pièces de plain-pied de 57 m² et de 326 m² de terrain, idéalement située dans Créhen (22130). Conçue de plain-pied, elle compte deux chambres, une cuisine et une salle de bains. La maison est neuve. Cette maison se trouve dans un quartier attractif. Il y a l'École Primaire Publique Jacques Prévert, l'École Primaire Privée Immaculée Conception et le Collège Privé Immaculée-Conception à moins de 10 minutes à pied et une structure d'accueil pour les enfants en bas âge. Niveau transports en commun, on trouve trois gares (Plancoët, Corseul-Languenan et Landébia) à moins de 10 minutes en voiture. Il y a un accès à la nationale N176 à 13 km. Il y a un tennis à proximité. Enfin, le marché Place de l'Eglise a lieu tous les mardis matin. Elle est à vendre pour la somme de 168 250 €. Contactez notre agence (Laetitia AMIRI : ) pour plus d'informations sur la maison. Nos offres de terrains sont proposées en collaboration avec nos partenaires fonciers pour des maisons dans le cadre de la loi du 10/12/1990, selon disponibilité. Surface habitable : 57m2. Nombre de pièces : 3. Nombre de chambres : 2. Prix terrain seul : 35208 euros. Terrain proposé par un partenaire foncier selon disponibilités et autorisation de publicité au prix de 35 208 €. Hors droit d'enregistrement et frais de notaire. Terrain + Maison proposés au prix de 168 250 € (Hors branchements et raccordements, papiers peints, peintures, revêtement de sol dans les chambres. Tarif modifiable sans préavis). Etiquette énergie : A. Différents modèles disponibles pour ce terrain. Assurances et garanties du constructeur (RC professionnelle, décennale, dommage ouvrage, garantie de remboursement de l'acompte, livraison à prix et délai convenu) : MAISONS DE L'AVENIR L'Ecotay 22100 Saint-Carné Référence : LA2465453_2 Bien En copropriété : non

Informations clés

  • Prix 168 250 €
  • Référence ParuVendu 1046460_1005127_3703094
  • Nombre de pièces 3 pièces
  • Surface 57 m²
  • Date DPE 01/01/1970
  • Classe énergie  A
  • Indice d’émissions de gaz à effet de serre  NC