Maison - 6 pièce(s) - 136 m² Denée

PreviousNext

Description

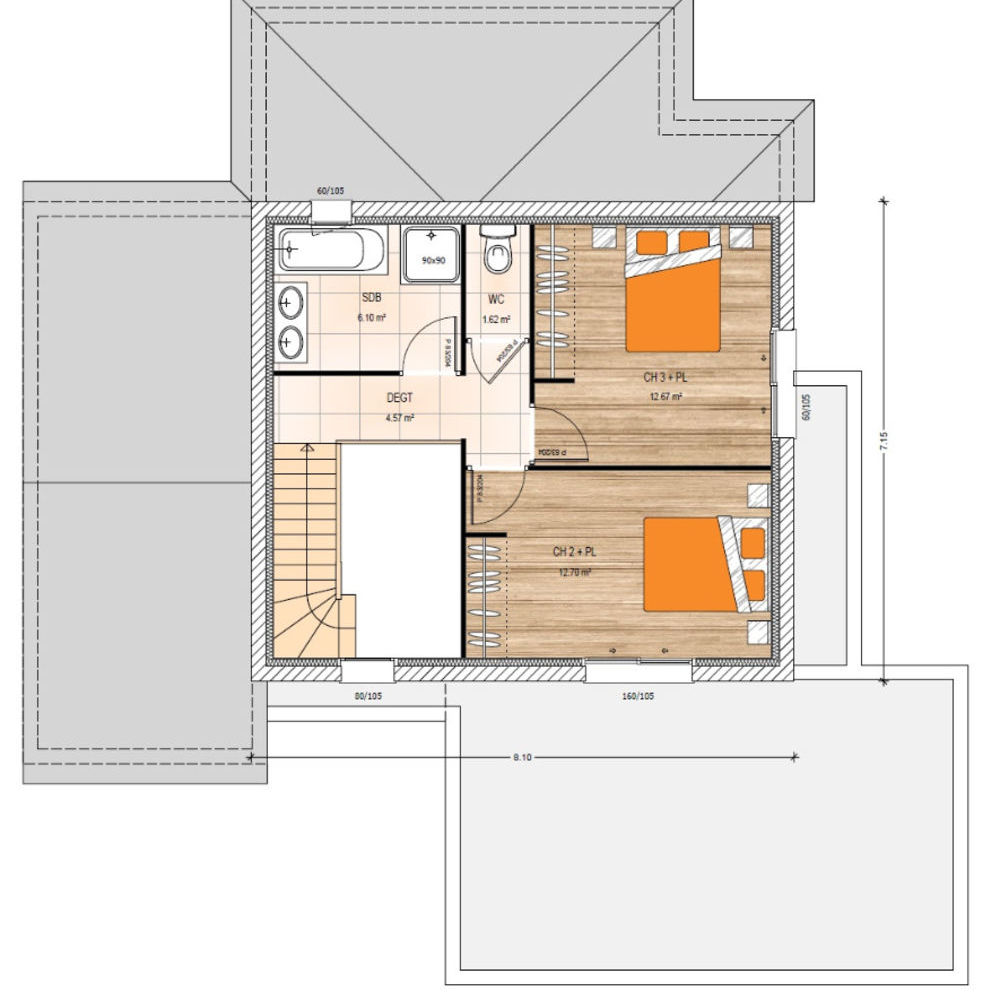
VENTE : maison T6 (136 m²) à Denée Idéalement située -  À Denée (49190), maison neuve à vendre de 6 pièces, 2 niveaux, 136 m² de surface et 330 m² de terrain. Elle offre quatre chambres, une cuisine et deux salles de bains. À dix minutes : gares (Savennières-Béhuard et La Possonnière), écoles, bibliothèque et épicerie. Angers à 12 km. Cette maison de 6 pièces est à vendre pour la somme de 359 500 €. Prenez contact avec Mathieu JANNEAU (tél : ) pour obtenir de plus amples informations sur la maison, sur les modalités de vente ou sur les démarches à suivre. Maisons Bernard Jambert Angers vous accompagne à toutes les étapes de l'achat et dans tous vos projets immobiliers. Nos offres de terrains sont proposées en collaboration avec nos partenaires fonciers pour des maisons dans le cadre de la loi du 10/12/1990, selon disponibilité. Surface habitable : 136m2. Nombre de pièces : 6. Nombre de chambres : 4. Prix terrain seul : 69000 euros. Terrain proposé par un partenaire foncier selon disponibilités et autorisation de publicité au prix de 69 000 €. Hors droit d'enregistrement et frais de notaire. Terrain + Maison proposés au prix de 359 500 € (Hors branchements et raccordements, papiers peints, peintures, revêtement de sol dans les chambres. Tarif modifiable sans préavis). Etiquette énergie : A. Différents modèles disponibles pour ce terrain. Assurances et garanties du constructeur (RC professionnelle, décennale, dommage ouvrage, garantie de remboursement de l'acompte, livraison à prix et délai convenu) : MAISONS BERNARD JAMBERT 55 bd Eugène Chaumin 49100 Angers Référence : MJ2446481_2 Bien En copropriété : non

Informations clés

  • Prix 359 500 €
  • Référence ParuVendu 1005473_1005143_3683812
  • Nombre de pièces 6 pièces
  • Surface 136 m²
  • Date DPE 01/01/1970
  • Classe énergie  A
  • Indice d’émissions de gaz à effet de serre  NC