Maison - 6 pièce(s) - 150 m² Deuil-la-Barre

PreviousNext

Description

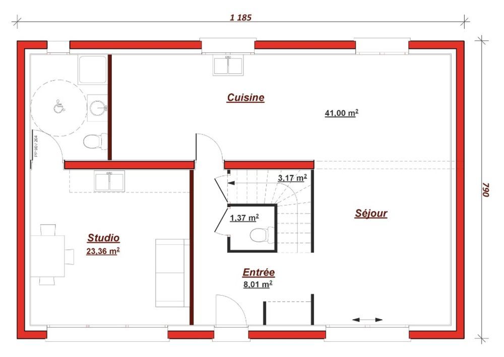
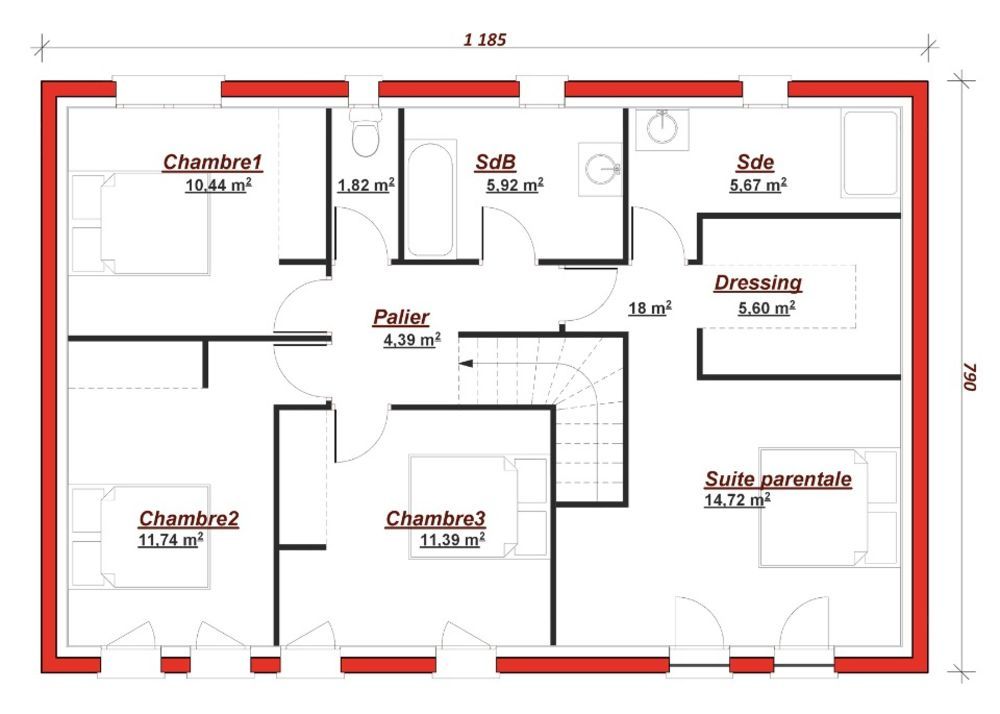
Votre conseiller en construction Stéphane LEPAGE Maisons Berval L'Isle-Adam, vous propose un projet de construction sur un terrain de 1 109 m2 dans la commune de Deuil-la-Barre. Tous nos modèles sont totalement adaptable à vos envies et besoins et personnalisable grâce à de nombreuses options de finition. La Dauphine 150 vous offre un ensemble salon/séjour, cuisine, une suite parentale, 3 chambres, un bureau et une salle de bains. Maisons Berval est certifiée NF Habitat HQE. Pour tous renseignements, veuillez contacter Monsieur Stéphane LEPAGE Le prix affiché comprend le coût du terrain et de la construction hors frais de notaire et taxes. Nos offres de terrains sont proposées en collaboration avec nos partenaires fonciers pour des maisons dans le cadre de la loi du 10/12/1990, selon disponibilité. Surface habitable : 150m2. Nombre de pièces : 6. Nombre de chambres : 5. Les annonces de terrains constructibles sont sélectionnées auprès de nos partenaires fonciers. Ces derniers sont soit des professionnels dûment habilités à la transaction immobilière, soit des particuliers. Terrains, selon disponibilité, pour la construction de maisons neuves, avec un contrat de construction de maison individuelle, dans le cadre de la loi du 19/12/1990. Les terrains sélectionnés sont disponibles à la date de la première parution de l’annonce. En aucun cas Maisons Berval ou ses collaborateurs ne sont propriétaires des terrains , ne jouent un rôle d’intermédiation ou de négociation sur la transaction et ne participent à la vente. Prix indiqués par nos partenaires fonciers. BERVAL 5 Grande Rue 95290 L'Isle-Adam Référence : SL2269421 Bien En copropriété : non

Informations clés

  • Prix 661 000 €
  • Référence ParuVendu 1030017_1005128_3512478
  • Nombre de pièces 6 pièces
  • Surface 150 m²
  • Date DPE 01/01/1970
  • Classe énergie  A
  • Indice d’émissions de gaz à effet de serre  NC