Maison - 4 pièce(s) - 110 m² Dieupentale

PreviousNext

Description

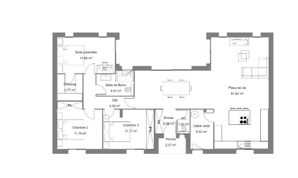
Bienvenue dans cette charmante résidence en U, une véritable oasis de confort et de sophistication. Cette maison exceptionnelle de 110 m² offre un cadre de vie raffiné et fonctionnel, alliant élégance moderne et design intemporel à 7 min de DIEUPENTALE. Dès l'entrée, vous serez accueilli par un espace lumineux et aéré qui s'étend harmonieusement sur trois côtés de la maison, créant ainsi une atmosphère chaleureuse et conviviale. Les grandes baies vitrées et les portes-fenêtres laissent généreusement pénétrer la lumière naturelle, créant une sensation d'espace et mettant en valeur les finitions de qualité. La cuisine, véritable joyau de cette demeure, allie esthétisme et fonctionnalité. Équipée de matériaux haut de gamme et d'appareils modernes, elle est le lieu idéal pour exprimer vos talents culinaires. L'îlot central crée un point focal élégant et favorise la convivialité, invitant à partager de délicieux repas en famille et entre amis. Les trois chambres à coucher, spacieuses et lumineuses, offrent des retraites privées où le confort et le bien-être sont prioritaires. Les matériaux de qualité et la palette de couleurs apaisantes créent une ambiance propice à la détente, tandis que les placards intégrés assurent un rangement optimal, combinant ainsi style et fonctionnalité. Le jardin intérieur, véritable coeur de la maison en U, constitue un espace extérieur privilégié. Intimiste et bien aménagé, il vous offre un refuge tranquille pour profiter des journées ensoleillées ou des soirées étoilées, créant ainsi une connexion harmonieuse entre l'intérieur et l'extérieur. Investissement terrain + maison: 330 055€ (hors frais annexes) Contactez-nous pour une étude gratuite et découvrez comment passer du rêve à la réalité avec le leader de la construction en France: Agence MAISONS FRANCE CONFORT d'Aucamville Annonce proposée par un Agent Commercial Partenaire. Nos offres de terrains sont proposées en collaboration avec nos partenaires fonciers pour des maisons dans le cadre de la loi du 10/12/1990, selon disponibilité. Surface habitable : 110m2. Nombre de pièces : 4. Nombre de chambres : 3. Prix terrain seul : 57000 euros. Terrain proposé par un partenaire foncier selon disponibilités et autorisation de publicité au prix de 57 000 €. Hors droit d'enregistrement et frais de notaire. Maison proposée, avec un contrat de construction de maison individuelle, dans le cadre de la loi du 19/12/1990, au prix de 273 055 € (Hors branchements et raccordements, papiers peints, peintures, revêtement de sol dans les chambres, qui sont chiffrés dans les travaux qui restent à charge du client. Tarif modifiable sans préavis). Étiquette énergie : A. Différents modèles disponibles pour ce terrain. Assurances et garanties du constructeur comprises (RC professionnelle, décennale, dommage ouvrage). MAISONS FRANCE CONFORT 17 chemin Bellegarrigues 31140 Aucamville Référence : AL2349286_2 Bien En copropriété : non

Informations clés

  • Prix 330 055 €
  • Référence ParuVendu 1005249_1005119_3585258
  • Nombre de pièces 4 pièces
  • Surface 110 m²
  • Date DPE 01/01/1970
  • Classe énergie  A
  • Indice d’émissions de gaz à effet de serre  NC