Maison - 5 pièce(s) - 120 m² Flourens

PreviousNext

Description

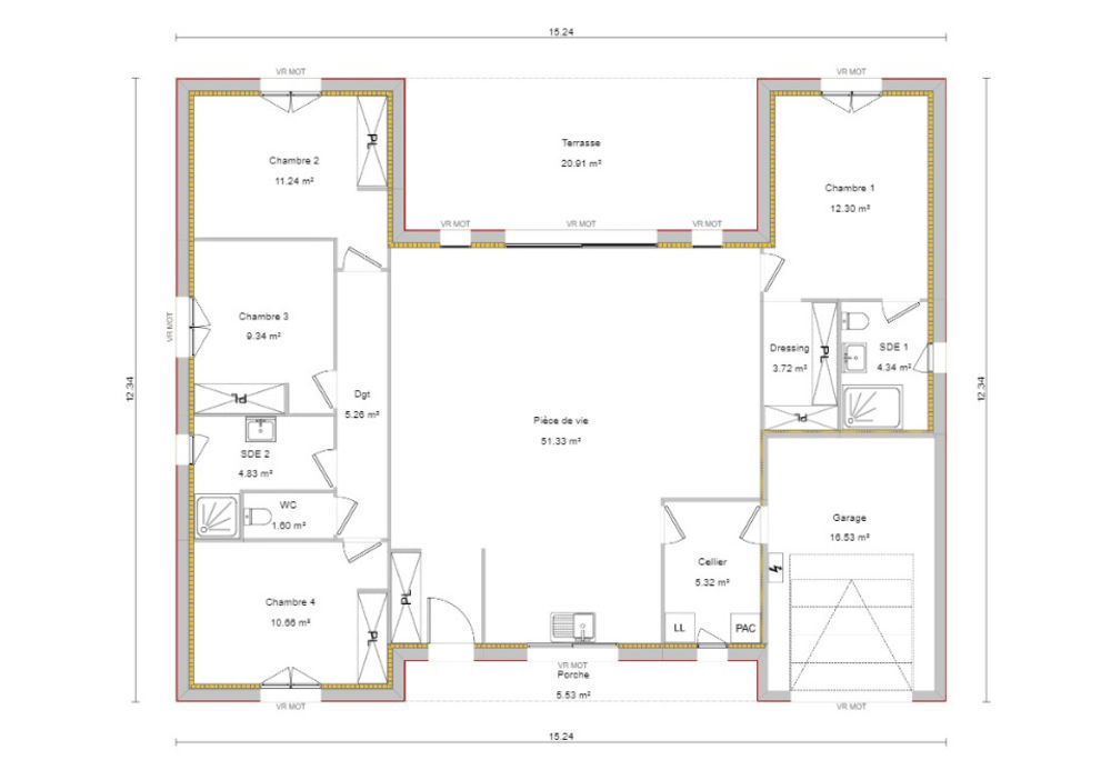
L'élégance architecturale et le confort moderne à 3 minutes de FLOURENS Découvrez une opportunité rare d'acquérir une villa d'exception de 120 m² sur un terrain de 650 m² dans la charmante commune de DREMIL LAFAGE. Ce projet de construction "clé en main" est conçu pour une clientèle exigeante, cherchant l'harmonie parfaite entre un design contemporain, des espaces de vie optimisés et un environnement privilégié. Une conception ingénieuse pour un quotidien d'exception Cette villa se distingue par son architecture en "U" qui, au-delà de son esthétisme, garantit une circulation fluide et une luminosité optimale. Espace de vie de plus de 50 m² : un vaste salon-séjour traversant avec une cuisine ouverte et un cellier attenant, idéal pour recevoir et partager des moments en famille. Quatre chambres, dont une suite parentale : l'agencement intelligent inclut une suite parentale avec dressing et salle d'eau privative, offrant un espace de repos et d'intimité. Extérieurs pensés pour le bien-être : une terrasse de 20 m², abritée du vent, prolonge naturellement l'espace de vie, vous permettant de profiter du calme de la campagne. Une opportunité d'investissement exceptionnelle Proposé à partir de 363 625 € (hors frais de notaire et annexes), ce projet représente un investissement sûr. DREMIL LAFAGE, avec son atmosphère paisible est la solution idéale pour ceux qui aspirent à un cadre de vie serein sans renoncer aux commodités urbaines, telles que les écoles, commerces et services de santé. Ce bien est plus qu'une simple maison, c'est l'opportunité de concrétiser votre projet de vie dans un environnement d'exception. Pour toutes informations, contactez l'agence MAISONS FRANCE CONFORT de Saint Orens Annonce proposée par un Agent Commercial Partenaire. Nos offres de terrains sont proposées en collaboration avec nos partenaires fonciers pour des maisons dans le cadre de la loi du 10/12/1990, selon disponibilité. Surface habitable : 120m2. Nombre de pièces : 5. Nombre de chambres : 4. Prix terrain seul : 150000 euros. Terrain proposé par un partenaire foncier selon disponibilités et autorisation de publicité au prix de 150 000 €. Hors droit d'enregistrement et frais de notaire. Terrain + Maison proposés au prix de 363 625 € (Hors branchements et raccordements, papiers peints, peintures, revêtement de sol dans les chambres. Tarif modifiable sans préavis). Etiquette énergie : A. Différents modèles disponibles pour ce terrain. Assurances et garanties du constructeur (RC professionnelle, décennale, dommage ouvrage, garantie de remboursement de l'acompte, livraison à prix et délai convenu) : HEXAOM Services est enregistré auprès de l'ORIAS en tant que Courtier en financement, Niveau 1, sous le numéro 14001345. MAISONS FRANCE CONFORT 1 rue de la plaine 31650 Saint-Orens-de-Gameville Référence : TL2455798_5 Bien En copropriété : non

Informations clés

  • Prix 363 625 €
  • Référence ParuVendu 1010987_1005119_3693983
  • Nombre de pièces 5 pièces
  • Surface 120 m²
  • Date DPE 01/01/1970
  • Classe énergie  A
  • Indice d’émissions de gaz à effet de serre  NC