Maison - 6 pièce(s) - 186 m² Flourens

PreviousNext

Description

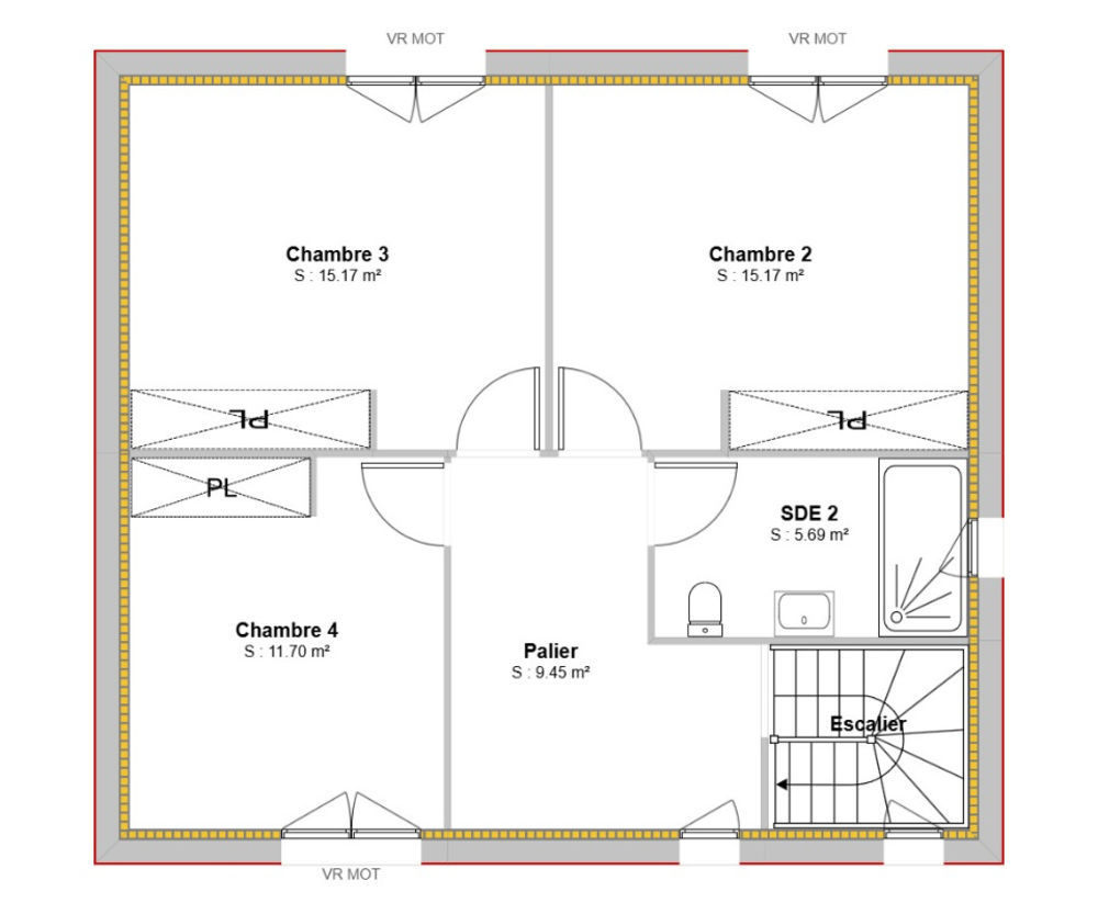
Une villa d'exception sur mesure à 3 minutes de FLOURENS Découvrez un projet de vie unique : une villa contemporaine de 186 m² sur un terrain de 655 m², alliant modernité et confort dans le cadre prisé de DREMIL LAFAGE. Conçu pour les familles exigeantes, ce bien offre des prestations haut de gamme et un agencement optimisé pour votre bien-être. Un espace de vie pensé pour le quotidien Vaste pièce à vivre de 56 m² : Une cuisine ouverte et un cellier attenant s'intègrent parfaitement à cet espace, créant un lieu de convivialité et de partage. Salon TV séparé de 16 m² : Profitez d'un espace dédié à la détente et au divertissement, idéal pour les soirées cinéma en famille ou les moments de tranquillité. 5 chambres, 2 salles de bains, 2 WC séparés : L'agencement en étage partiel permet de créer des espaces nuit distincts, préservant l'intimité de chacun. Des prestations de qualité supérieure Architecture moderne : Des lignes épurées et des volumes généreux créent une atmosphère lumineuse et aérée. Garage de 27 m² : Un espace fonctionnel pour abriter vos véhicules ou pour du rangement supplémentaire. Terrasse de 30 m² et porche d'entrée : Des espaces extérieurs élégants pour profiter des beaux jours et recevoir vos invités. Le meilleur des deux mondes Ce projet "terrain + maison" est proposé à partir de 550 000 € (hors frais de notaire et annexes). Situé à quelques minutes de Toulouse, DREMIL LAFAGE offre un environnement paisible avec toutes les commodités essentielles à proximité (écoles, commerces, services de santé). C'est le compromis idéal entre la quiétude de la campagne et l'accès facile aux services urbains. Pour toutes informations, contactez l'agence MAISONS FRANCE CONFORT de Saint Orens Annonce proposée par un Agent Commercial Partenaire. Nos offres de terrains sont proposées en collaboration avec nos partenaires fonciers pour des maisons dans le cadre de la loi du 10/12/1990, selon disponibilité. Surface habitable : 186m2. Nombre de pièces : 6. Nombre de chambres : 5. Prix terrain seul : 150000 euros. Terrain proposé par un partenaire foncier selon disponibilités et autorisation de publicité au prix de 150 000 €. Hors droit d'enregistrement et frais de notaire. Terrain + Maison proposés au prix de 550 000 € (Hors branchements et raccordements, papiers peints, peintures, revêtement de sol dans les chambres. Tarif modifiable sans préavis). Etiquette énergie : A. Différents modèles disponibles pour ce terrain. Assurances et garanties du constructeur (RC professionnelle, décennale, dommage ouvrage, garantie de remboursement de l'acompte, livraison à prix et délai convenu) : HEXAOM Services est enregistré auprès de l'ORIAS en tant que Courtier en financement, Niveau 1, sous le numéro 14001345. MAISONS FRANCE CONFORT 1 rue de la plaine 31650 Saint-Orens-de-Gameville Référence : TL2455798_1 Bien En copropriété : non

Informations clés

  • Prix 550 000 €
  • Référence ParuVendu 1010987_1005119_3693980
  • Nombre de pièces 6 pièces
  • Surface 186 m²
  • Date DPE 01/01/1970
  • Classe énergie  A
  • Indice d’émissions de gaz à effet de serre  NC