Maison - 4 pièce(s) - 94 m² Formentin

PreviousNext

Description

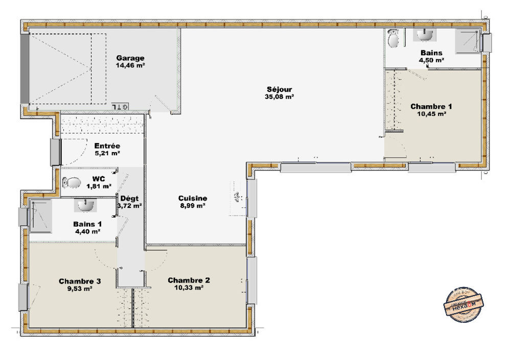
OSSATURE BOIS VENTE : maison T4 (94 m²) à Formentin IDÉALEMENT SITUÉE - MAISON 4 PIÈCES NEUVE En vente : nous sommes ravis de vous présenter cette maison de 4 pièces de plain-pied de 94 m² et de 1 458 m² de terrain idéalement située dans Formentin (14340). Conçue de plain-pied, elle dispose de trois chambres, d'une cuisine et de deux salles de bains. La maison est neuve. Cette maison se trouve dans un secteur recherché. Tous les types d'établissements scolaires sont implantés à moins de 10 minutes en voiture. Côté transports en commun, il y a les gares Le Grand Jardin et Lisieux dans les alentours. L'autoroute A13 est accessible à 8 km. On trouve des tennis, des bibliothèques, un bassin de natation, un bowling, des boulangeries, des commerces, quatre supermarchés, trois bureaux de poste et des épiceries à quelques minutes à peine. Le marché Place de la République a lieu chaque samedi. Son prix de vente est de 292 500 €. Contactez notre agence (Angélique CUVILLIERS : ) pour tout renseignement sur la maison, sur les modalités de vente ou sur les démarches à suivre. EXTRACO Construction Rénovation Pont-l'Évêque est là pour vous accompagner à toutes les étapes de l'achat. Nos offres de terrains sont proposées en collaboration avec nos partenaires fonciers pour des maisons dans le cadre de la loi du 10/12/1990, selon disponibilité. Surface habitable : 94m2. Nombre de pièces : 4. Nombre de chambres : 3. Prix terrain seul : 90000 euros. Terrain proposé par un partenaire foncier selon disponibilités et autorisation de publicité au prix de 90 000 €. Hors droit d'enregistrement et frais de notaire. Maison proposée, avec un contrat de construction de maison individuelle, dans le cadre de la loi du 19/12/1990, au prix de 202 500 € (Hors branchements et raccordements, papiers peints, peintures, revêtement de sol dans les chambres, qui sont chiffrés dans les travaux qui restent à charge du client. Tarif modifiable sans préavis). Étiquette énergie : A. Différents modèles disponibles pour ce terrain. Assurances et garanties du constructeur comprises (RC professionnelle, décennale, dommage ouvrage). EXTRACO - Construction Rénovation 20 rue Hamelin 14130 Pont-l'Évêque Référence : AC2373748S52_1 Bien En copropriété : non

Informations clés

  • Prix 292 500 €
  • Référence ParuVendu 1046450_1005154_3608401
  • Nombre de pièces 4 pièces
  • Surface 94 m²
  • Date DPE 01/01/1970
  • Classe énergie  A
  • Indice d’émissions de gaz à effet de serre  NC