Maison - 4 pièce(s) - 98 m² Formentin

PreviousNext

Description

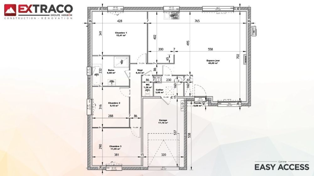
VENTE d'une maison de 4 pièces (98 m²) à Formentin IDÉALEMENT SITUÉE - MAISON 4 PIÈCES NEUVE Nous vous proposons, idéalement située dans Formentin (14340), cette maison de 4 pièces de plain-pied de 98 m². Elle offre trois chambres, une cuisine et une salle de bains. Le terrain de cette maison s'étend sur 1 458 m². Cette maison est neuve. La maison se trouve dans un secteur attractif. Il y a des écoles de tous types (de la maternelle au lycée) à moins de 10 minutes en voiture. Niveau transports, on trouve deux gares (Le Grand Jardin et Lisieux) dans un rayon de 10 km. L'autoroute A13 est accessible à 8 km. Il y a des tennis, des bibliothèques, un bassin de natation, un bowling, des boulangeries, des commerces, quatre supermarchés, deux supérettes et trois bureaux de poste dans les environs. Enfin, le marché Place de la République a lieu tous les samedis. Elle est proposée à l'achat pour 256 300 €. Prenez contact avec Angélique CUVILLIERS (tél : ) pour plus de renseignements sur le bien. Concrétisez vos projets immobiliers avec EXTRACO Construction Rénovation Pont-l'Évêque. Nos offres de terrains sont proposées en collaboration avec nos partenaires fonciers pour des maisons dans le cadre de la loi du 10/12/1990, selon disponibilité. Surface habitable : 98m2. Nombre de pièces : 4. Nombre de chambres : 3. Prix terrain seul : 90000 euros. Terrain proposé par un partenaire foncier selon disponibilités et autorisation de publicité au prix de 90 000 €. Hors droit d'enregistrement et frais de notaire. Maison proposée, avec un contrat de construction de maison individuelle, dans le cadre de la loi du 19/12/1990, au prix de 166 300 € (Hors branchements et raccordements, papiers peints, peintures, revêtement de sol dans les chambres, qui sont chiffrés dans les travaux qui restent à charge du client. Tarif modifiable sans préavis). Étiquette énergie : A. Différents modèles disponibles pour ce terrain. Assurances et garanties du constructeur comprises (RC professionnelle, décennale, dommage ouvrage). EXTRACO - Construction Rénovation 20 rue Hamelin 14130 Pont-l'Évêque Référence : AC2373748S52_4 Bien En copropriété : non

Informations clés

  • Prix 256 300 €
  • Référence ParuVendu 1046450_1005154_3608404
  • Nombre de pièces 4 pièces
  • Surface 98 m²
  • Date DPE 01/01/1970
  • Classe énergie  A
  • Indice d’émissions de gaz à effet de serre  NC