Maison - 6 pièce(s) - 89 m² Formentin

PreviousNext

Description

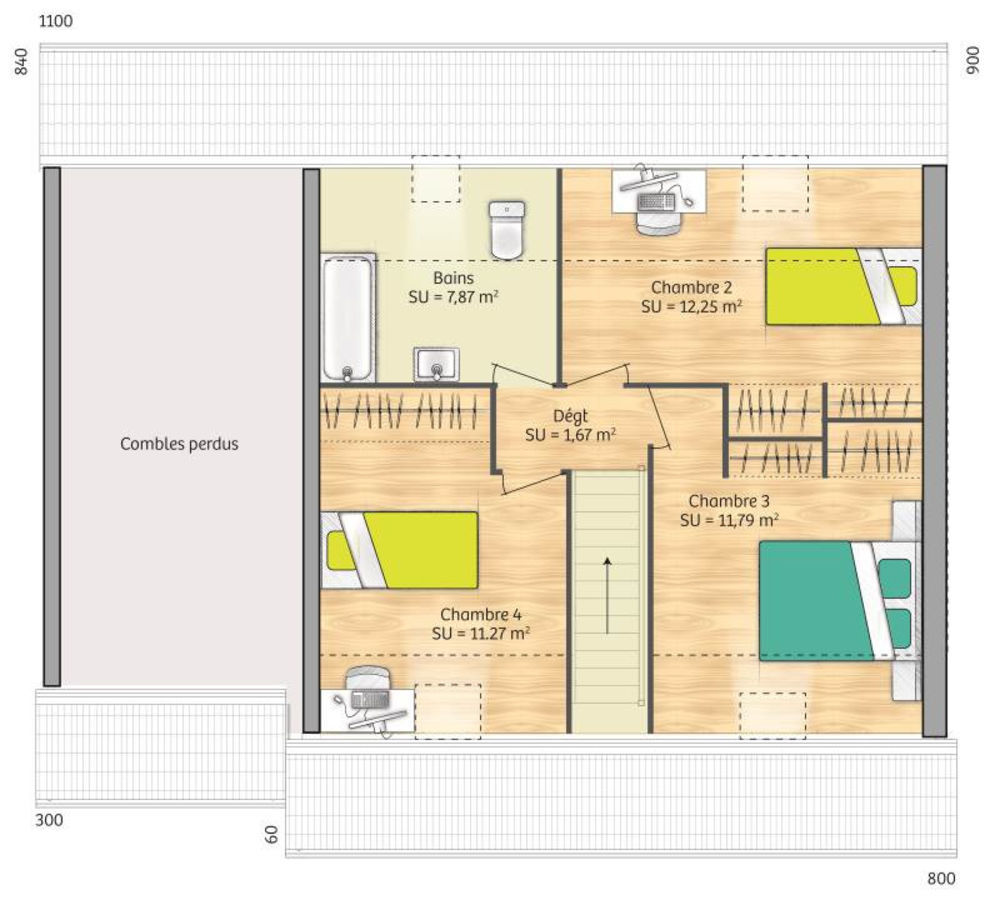
MAISONS FRANCE CONFORT LISIEUX VOUS PROPOSE DE CONSTRUIRE CETTE MAISON A ETAGE DE 89M² ENTREE SUR UNE PIECE DE VIE DE + DE 40M² AVEC CUISINE OUVERTE, 4 CHAMBRES DONT 1 AU RDC ET UNE SALLE DE BAIN. UN GRAND GARAGE POUR UNE ETUDE DE PROJET PRENDRE RDV AVEC ANGELIQUE Nos offres de terrains sont proposées en collaboration avec nos partenaires fonciers pour des maisons dans le cadre de la loi du 10/12/1990, selon disponibilité. Surface habitable : 89m2. Nombre de pièces : 6. Nombre de chambres : 4. Prix terrain seul : 90000 euros. Terrain proposé par un partenaire foncier selon disponibilités et autorisation de publicité au prix de 90 000 €. Hors droit d'enregistrement et frais de notaire. Maison proposée, avec un contrat de construction de maison individuelle, dans le cadre de la loi du 19/12/1990, au prix de 155 186 € (Hors branchements et raccordements, papiers peints, peintures, revêtement de sol dans les chambres, qui sont chiffrés dans les travaux qui restent à charge du client. Tarif modifiable sans préavis). Étiquette énergie : A. Différents modèles disponibles pour ce terrain. Assurances et garanties du constructeur comprises (RC professionnelle, décennale, dommage ouvrage). MAISONS FRANCE CONFORT 41 boulevard Jeanne d'Arc 14100 Lisieux Référence : AV2235582_3 Bien En copropriété : non

Informations clés

  • Prix 245 186 €
  • Référence ParuVendu 1041960_1005119_3471184
  • Nombre de pièces 6 pièces
  • Surface 89 m²
  • Date DPE 01/01/1970
  • Classe énergie  A
  • Indice d’émissions de gaz à effet de serre  NC