Maison - 6 pièce(s) - 114 m² Frévent

PreviousNext

Description

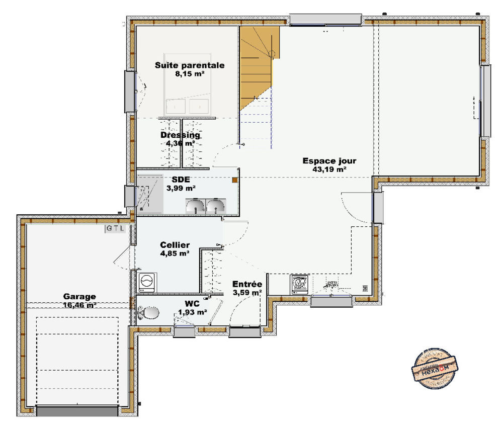
VENTE d'une maison de 6 pièces (114 m²) à Frévent Emplacement privilégié -  À Frévent (62270), maison neuve à vendre de 6 pièces, 2 niveaux, 114 m² sur 1 101 m² de terrain. Son intérieur offre cinq chambres, une cuisine et deux salles de bains. À proximité : établissements scolaires, crèches, bassin de natation, tennis, bibliothèque, commerces, boulangeries, supermarchés, épicerie et bureau de poste. Marché Place du marché le mardi matin. Cette maison de 6 pièces est à vendre pour la somme de 305 000 €. Contactez notre agence (WAILLE Thibaud : ) pour tout renseignement sur la maison ou sur les démarches à suivre. Maisons Les Naturelles Berck vous accompagne dans tous vos projets immobiliers et à toutes les étapes de l'achat. Annonce proposée par un Agent Commercial Partenaire. Nos offres de terrains sont proposées en collaboration avec nos partenaires fonciers pour des maisons dans le cadre de la loi du 10/12/1990, selon disponibilité. Surface habitable : 114m2. Nombre de pièces : 6. Nombre de chambres : 5. Prix terrain seul : 41400 euros. Terrain proposé par un partenaire foncier selon disponibilités et autorisation de publicité au prix de 41 400 €. Hors droit d'enregistrement et frais de notaire. Terrain + Maison proposés au prix de 263 600 € (Hors branchements et raccordements, papiers peints, peintures, revêtement de sol dans les chambres. Tarif modifiable sans préavis). Etiquette énergie : A. Différents modèles disponibles pour ce terrain. Assurances et garanties du constructeur (RC professionnelle, décennale, dommage ouvrage, garantie de remboursement de l'acompte, livraison à prix et délai convenu) : MAISONS LES NATURELLES 52 route de Merlimont 62600 Berck Référence : TW2382107_2 Bien En copropriété : non

Informations clés

  • Prix 305 000 €
  • Référence ParuVendu 1005484_1005146_3616790
  • Nombre de pièces 6 pièces
  • Surface 114 m²
  • Date DPE 01/01/1970
  • Classe énergie  A
  • Indice d’émissions de gaz à effet de serre  NC