Maison - 4 pièce(s) - 94 m² Gommerville

PreviousNext

Description

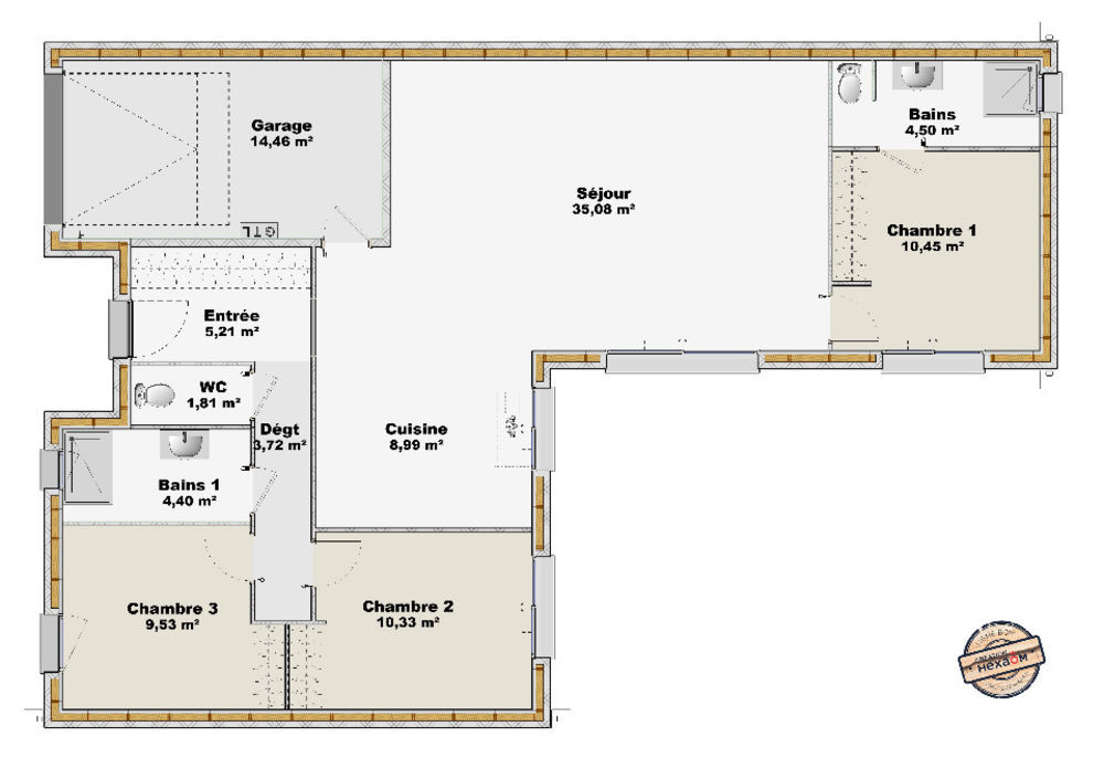
VENTE : maison de 4 pièces (94 m²) à Gommerville À Gommerville (28310), maison neuve à vendre de 4 pièces, 94 m² de surface sur 735 m² de terrain. Elle compte trois chambres, une cuisine et deux salles de bains. À dix minutes : gares (Angerville, Monnerville et Guillerval), commerce. Autoroute A10 et nationales N191 et N154 à 17 km. Le prix de vente de cette maison de 4 pièces est de 316 490 €. Prenez contact avec Steeve KANOR (tél : ) pour toute information sur la maison ou sur les démarches à suivre. Annonce proposée par un Agent Commercial Partenaire. Nos offres de terrains sont proposées en collaboration avec nos partenaires fonciers pour des maisons dans le cadre de la loi du 10/12/1990, selon disponibilité. Surface habitable : 94m2. Nombre de pièces : 4. Nombre de chambres : 3. Prix terrain seul : 39990 euros. Terrain proposé par un partenaire foncier selon disponibilités et autorisation de publicité au prix de 39 990 €. Hors droit d'enregistrement et frais de notaire. Maison proposée, avec un contrat de construction de maison individuelle, dans le cadre de la loi du 19/12/1990, au prix de 276 500 € (Hors branchements et raccordements, papiers peints, peintures, revêtement de sol dans les chambres, qui sont chiffrés dans les travaux qui restent à charge du client. Tarif modifiable sans préavis). Étiquette énergie : A. Différents modèles disponibles pour ce terrain. Assurances et garanties du constructeur comprises (RC professionnelle, décennale, dommage ouvrage). MAISONS EVOLUTION 17 rue de la Bergerie 91250 Tigery Référence : SK2331945_2 Bien En copropriété : non

Informations clés

  • Prix 316 490 €
  • Référence ParuVendu 1108280_1005141_3565724
  • Nombre de pièces 4 pièces
  • Surface 94 m²
  • Date DPE 01/01/1970
  • Classe énergie  A
  • Indice d’émissions de gaz à effet de serre  NC