Vente Longère 5 pièces Hénanbihen
Description
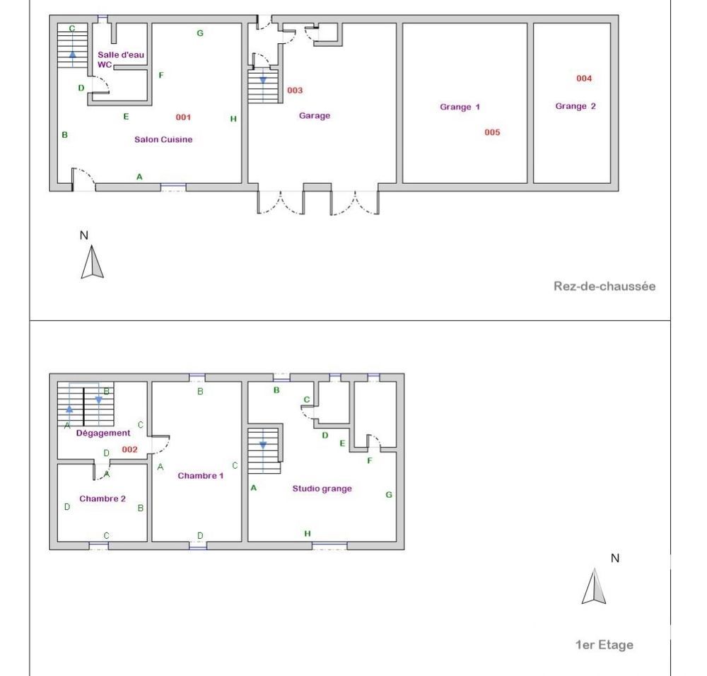
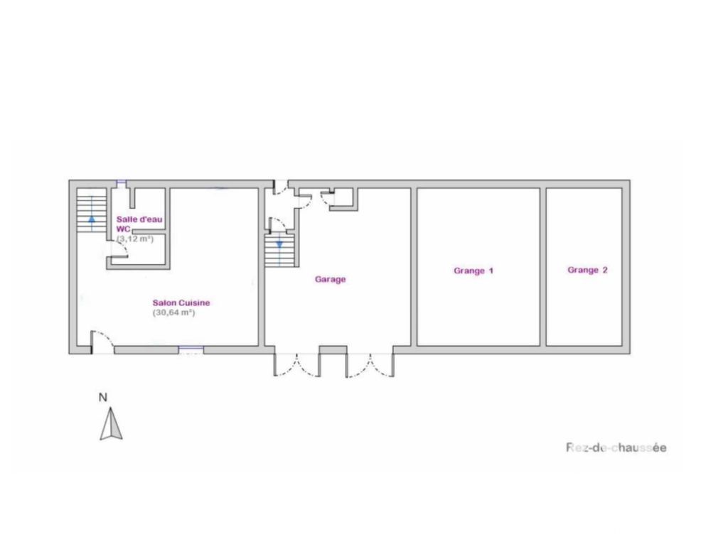
iad France - Nathalie ANQUET vous propose: Charme, authenticité et potentiel à seulement 15 minutes des plages ! Située dans un environnement paisible, cette longère en pierre séduit par son caractère et son cadre champêtre avec un jardin offrant une belle vue dégagée sur la campagne. Elle se compose de deux habitations attenantes, parfaites pour accueillir famille, amis ou pour un projet de gîte. Première habitation : Au rez-de-chaussée, un salon-séjour avec cheminée, une cuisine ouverte, une salle d’eau et un WC. À l’étage, deux chambres pleines de charme sous les poutres. Seconde habitation : À l’étage une pièce de vie lumineuse avec cuisine aménagée ouverte, une chambre, une salle d’eau et un WC. ENTRÉE INDÉPENDANTE (Possibilité de les réunir) Les plus : •Un grand garage avec 2 grandes portes de 43m2 environ et une dépendance 47m2 + 20m2 environ en pierre offrant de réelles possibilités d’aménagement (habitation, atelier ou projet locatif). •Un terrain arboré d’environ 4 316 m², idéal pour profiter du calme et de la nature. Possibilité d’avoir une parcelle de 6473m2 en sus. Un bien rare, à la fois authentique et évolutif, pour ceux qui rêvent d’espace, de verdure et de liberté à proximité du littoral. Une visite s’impose ! Contactez-moi dès aujourd’hui pour découvrir ce lieu plein de charme. Honoraires d'agence à la charge de l'acquéreur. Prix honoraires inclus : 296300 euros. Prix hors honoraires : 285000 euros. Honoraires TTC à la charge de l'acquéreur (3,96% du prix du bien hors honoraires) : 11300 euros. Information d'affichage énergétique sur ce bien : classe ENERGIE E indice 270 et classe CLIMAT B indice 10. Les informations sur les risques auxquels ce bien est exposé, y compris l'obligation légale de débroussaillement, sont disponibles sur le site Géorisques : La présente annonce immobilière a été rédigée sous la responsabilité éditoriale de Mme Nathalie ANQUET mandataire indépendant en immobilier (sans détention de fonds), agent commercial de la SAS I@D France immatriculé au RSAC de SAINT BRIEUC sous le numéro 413164591, titulaire de la carte de démarchage immobilier pour le compte de la société I@D France SAS. CC HT Numéro de mandat : 1887553 Honoraires à la charge du Vendeur Bien En copropriété : NON
Informations clés
- Prix 296 300 €
- Référence ParuVendu 1887553
- Nombre de pièces 5 pièces
- Surface 80 m²
- Date DPE 29/01/2025
- Classe énergie E
- Indice d’émissions de gaz à effet de serre B
- Dépenses énergétiques Montant moyen pour 2021 : 2 380 €
Diagnostic énergétique


Pour la nouvelle notation (DPE à partir de juillet 2021), c'est la plus mauvaise des deux performances (énergie, climat) qui est retenue.