Magnifique maison rénovée JOUY ! Jouy
Description
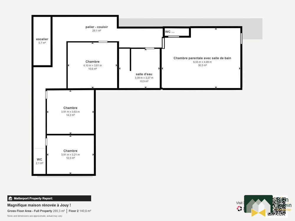
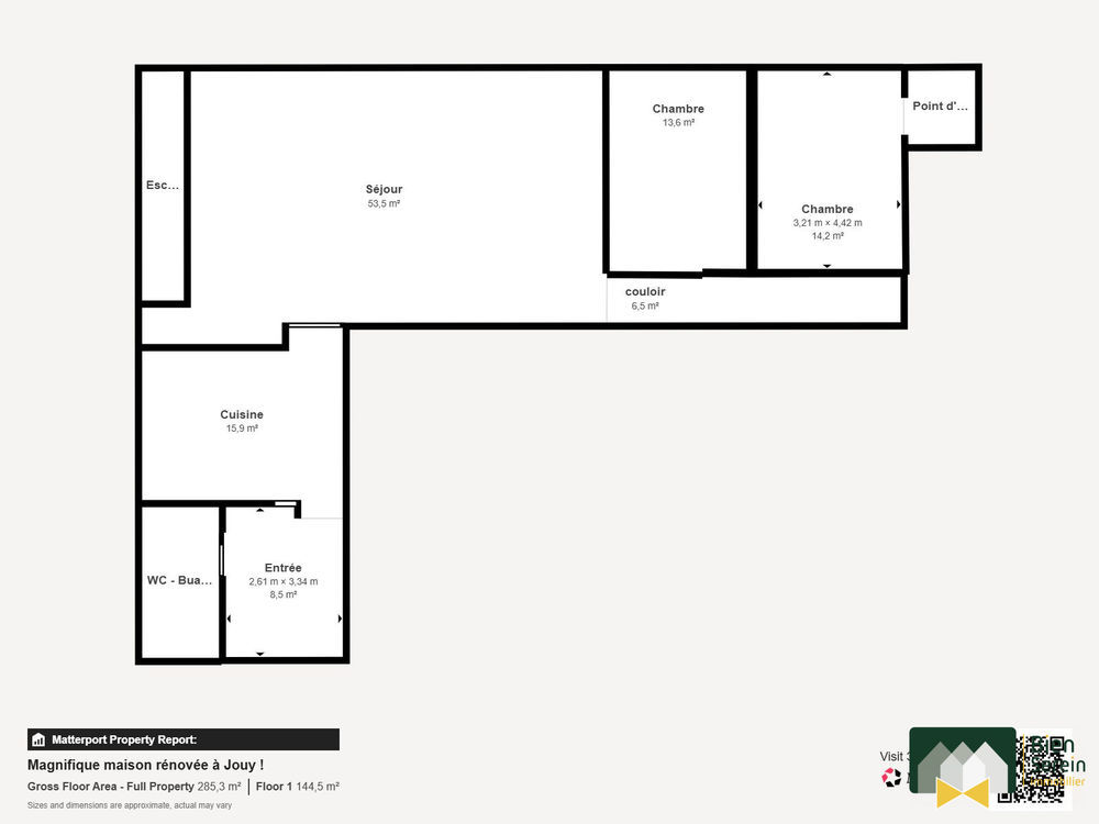
Bienvenue dans votre futur chez-vous ! Nous sommes ravis de vous présenter cette superbe maison totalement rénovée, avec une surface habitable de 223 m², cette maison fonctionnelle et lumineuse vous offrira des volumes généreux. Profitez de notre visite virtuelle pour découvrir cette exclusivité située dans un quartier recherché de Jouy. Découvrez l'intérieur : - Au rez-de-chaussée : - Grande entrée avec rangements, - Cuisine, - WC, - Grande pièce de vie avec cheminée, - Deux chambres, A l'étage : - Palier avec possibilités de rangements, - 3 chambres, - 1 chambres parentales avec salle de bain, WC et buanderie, - Salle d'eau, - WC, Espace extérieur - Carport de 100m², - Grand jardin arboré sans vis-à-vis, - Triple garage, - Terrasse exposée sud, Côté confort - Double vitrage PVC, - Grands espaces, - 2 poêles, - Possibilités de créer 4 couchages en location touristiques avec entrée indépendante. L'emplacement À seulement 5 minutes à pied, vous trouverez un arrêt de bus, facilitant vos déplacements quotidiens. À 10 minutes à pied, vous aurez accès à une maternelle, une école élémentaire, une alimentation générale, une pizzeria, un boucher, un charcutier-traiteur, une pharmacie, un bar-tabac, un coiffeur et un fleuriste. Liaisons rapides vers Chartres et Paris, idéale pour les voyageurs du quotidien. N'hésitez pas à contacter votre agent au Noeud Pap' pour obtenir plus d'informations et visiter cette maison ! Honoraires à la charge du vendeur. Classe énergie E, Classe climat B Montant estimé des dépenses annuelles d'énergie pour un usage standard : entre 3915.00 € et 5292.00 € sur les années 2021, 2022 et 2023 (abonnements compris). Les informations sur les risques auxquels ce bien est exposé sont disponibles sur le site Géorisques : georisques.gouv.fr. Votre conseiller Bien Serein immobilier : Margot NYS Agent commercial (Entreprise individuelle) RSAC 883679029 TTC Numéro de mandat : 744 Honoraires à la charge du Vendeur Bien En copropriété : NON
Informations clés
- Prix 450 000 €
- Référence ParuVendu 744-BIENSEREIN28
- Nombre de pièces 8 pièces
- Surface 223 m²
- Date DPE 06/10/2025
- Classe énergie E
- Indice d’émissions de gaz à effet de serre B
- Dépenses énergétiques Montant moyen pour 2021 : 4 604 €
- Ce bien fait l'objet d'un état des risques. Les informations sur les risques auxquels ce bien est exposé sont disponibles sur le site Géorisques : https://www.georisques.gouv.fr
Diagnostic énergétique


Pour la nouvelle notation (DPE à partir de juillet 2021), c'est la plus mauvaise des deux performances (énergie, climat) qui est retenue.