Maison - 5 pièce(s) - 100 m² Juillan

PreviousNext

Description

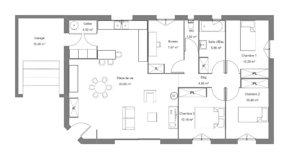
Juillan : maison de 5 pièces (100 m²) en vente Idéalement située -  À Juillan (65290), maison neuve à vendre de 5 pièces, 100 m² et 526 m² de terrain. Elle offre trois chambres, une cuisine et une salle de bains. École Primaire Privée, tennis, boulangeries, commerces, bureau de poste et boucherie-charcuterie. Autoroute A64 et nationale N21 à 2 km. Tarbes à 5 km. Cette maison de 5 pièces est proposée à l'achat pour 232 600 €. N'hésitez pas à prendre contact avec Vincent CAUSSIEU () pour toute information sur la maison, sur les modalités de vente ou sur les démarches à suivre. Maisons Bruno Petit GHPA Juillan vous accompagne à toutes les étapes de l'achat et dans tous vos projets immobiliers. Nos offres de terrains sont proposées en collaboration avec nos partenaires fonciers pour des maisons dans le cadre de la loi du 10/12/1990, selon disponibilité. Surface habitable : 100m2. Nombre de pièces : 5. Nombre de chambres : 3. Prix terrain seul : 49000 euros. Terrain proposé par un partenaire foncier selon disponibilités et autorisation de publicité au prix de 49 000 €. Hors droit d'enregistrement et frais de notaire. Maison proposée, avec un contrat de construction de maison individuelle, dans le cadre de la loi du 19/12/1990, au prix de 183 600 € (Hors branchements et raccordements, papiers peints, peintures, revêtement de sol dans les chambres, qui sont chiffrés dans les travaux qui restent à charge du client. Tarif modifiable sans préavis). Étiquette énergie : A. Différents modèles disponibles pour ce terrain. Assurances et garanties du constructeur comprises (RC professionnelle, décennale, dommage ouvrage). MAISONS BRUNO PETIT GHPA 9 route de Lourdes 65290 Juillan Référence : VC2279479_3 Bien En copropriété : non

Informations clés

  • Prix 232 600 €
  • Référence ParuVendu 1005397_1005129_3511759
  • Nombre de pièces 5 pièces
  • Surface 100 m²
  • Date DPE 01/01/1970
  • Classe énergie  A
  • Indice d’émissions de gaz à effet de serre  NC