Maison - 4 pièce(s) - 105 m² Labenne

PreviousNext

Description

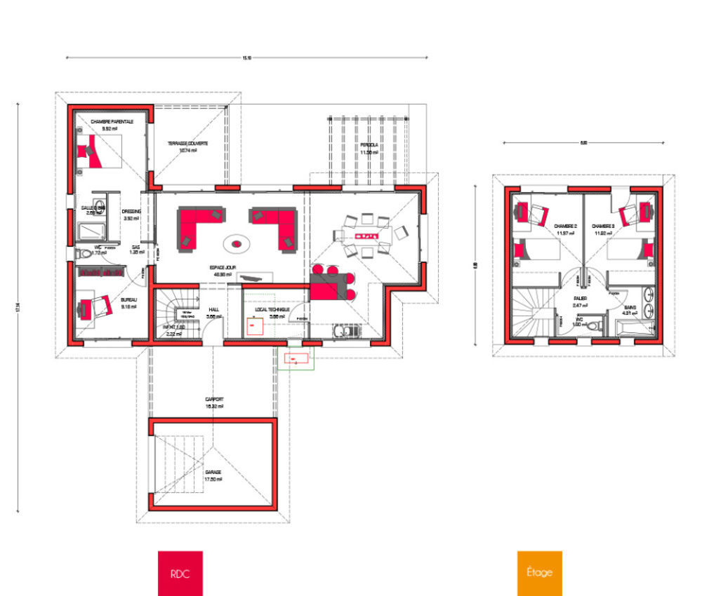
Imaginez votre future maison sur ce beau terrain bien exposé, situé à Labenne. Avec une superficie d'environ 500 m², ce terrain offre un cadre idéal pour réaliser un projet personnalisé, selon vos envies et vos besoins. Nous vous accompagnons dans chaque étape pour concevoir une maison sur mesure. Pour plus d'informations ou une étude de votre projet, Contactez Théo Costosseque, de l'agence Couleur Villas à Labenne au O651110391. Nos offres de terrains sont proposées en collaboration avec nos partenaires fonciers pour des maisons dans le cadre de la loi du 10/12/1990, selon disponibilité. Surface habitable : 105m2. Nombre de pièces : 4. Nombre de chambres : 3. Prix terrain seul : 275000 euros. Terrain proposé par un partenaire foncier selon disponibilité dans le cadre d’un projet de construction avec Couleur Villas. Les descriptions, photographies, surfaces et prix illustrant l’annonce sont fournies à titre indicatif et ne sont pas contractuels. Non soumis au DPE. Différents modèles disponibles. Couleur Villas 46 Avenue du Général de Gaulle 40530 Labenne Référence : TC2312156_1-0 Bien En copropriété : non

Informations clés

  • Prix 595 000 €
  • Référence ParuVendu 1127749_1127774_3548183
  • Nombre de pièces 4 pièces
  • Surface 105 m²
  • Date DPE 01/01/1970
  • Classe énergie  A
  • Indice d’émissions de gaz à effet de serre  NC