Maison - 5 pièce(s) - 89 m² Le Tronchet

PreviousNext

Description

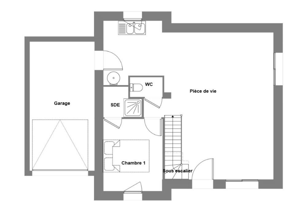
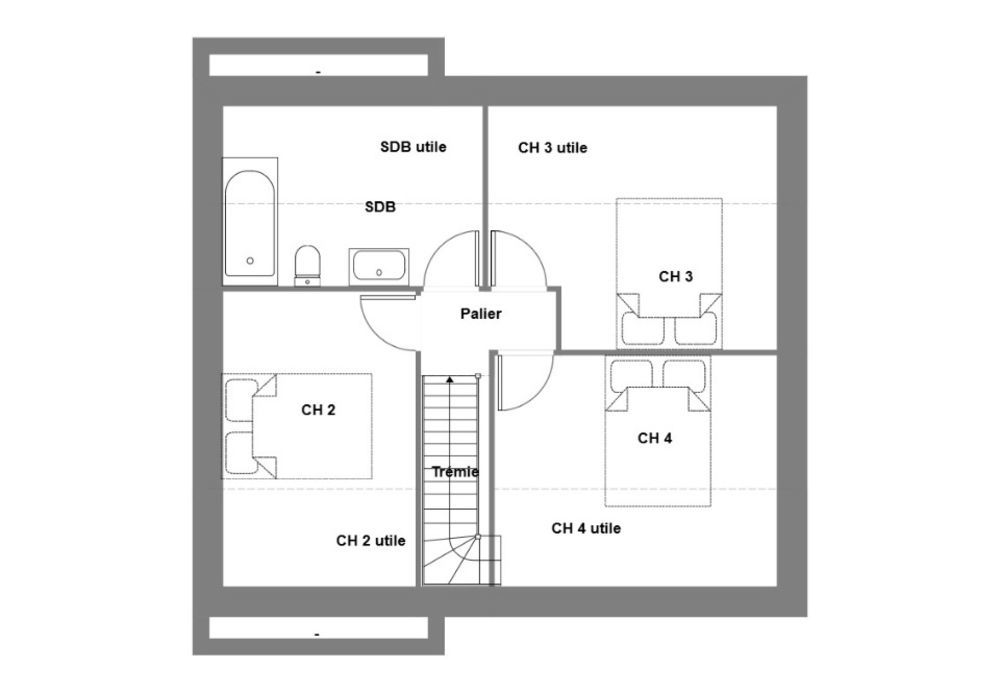
VENTE : maison de 5 pièces (89 m²) au Tronchet EMPLACEMENT PRIVILÉGIÉ - MAISON 5 PIÈCES NEUVE À 12 km de la Manche et à quelques kilomètres de Saint-Malo, en vente bénéficiant d'un emplacement d'exception dans Le Tronchet (35540), nous vous présentons cette maison de 5 pièces de 89 m². Elle dispose de quatre chambres, d'une cuisine et de deux salles de bains. Le terrain de la maison s'étend sur 948 m². Cette maison possède 2 niveaux. Elle est neuve. Cette maison se trouve dans un secteur attractif. L'École Primaire Publique Albert Aubry est implantée à moins de 10 minutes à pied. Niveau transports, on trouve cinq gares à moins de 10 minutes en voiture. La nationale N176 est accessible à 6 km. Il y a une bibliothèque et un tennis à proximité. Elle est proposée à l'achat pour 245 693 €. Contactez notre agence pour obtenir de plus amples renseignements sur la maison ou sur les démarches à suivre. Concrétisez vos projets immobiliers avec Maisons de l'Avenir Pacé. Nos offres de terrains sont proposées en collaboration avec nos partenaires fonciers pour des maisons dans le cadre de la loi du 10/12/1990, selon disponibilité. Surface habitable : 89m2. Nombre de pièces : 5. Nombre de chambres : 4. Prix terrain seul : 60000 euros. Terrain proposé par un partenaire foncier selon disponibilités et autorisation de publicité au prix de 60 000 €. Hors droit d'enregistrement et frais de notaire. Terrain + Maison proposés au prix de 245 693 € (Hors branchements et raccordements, papiers peints, peintures, revêtement de sol dans les chambres. Tarif modifiable sans préavis). Etiquette énergie : A. Différents modèles disponibles pour ce terrain. Assurances et garanties du constructeur (RC professionnelle, décennale, dommage ouvrage, garantie de remboursement de l'acompte, livraison à prix et délai convenu) : MAISONS DE L'AVENIR 7, rue d'Armor 35740 Pacé Référence : CR2448307_7 Bien En copropriété : non

Informations clés

  • Prix 245 693 €
  • Référence ParuVendu 1005371_1005127_3703579
  • Nombre de pièces 5 pièces
  • Surface 89 m²
  • Date DPE 01/01/1970
  • Classe énergie  A
  • Indice d’émissions de gaz à effet de serre  NC