BELLE MAISON 8 PIÈCES AVEC DOUBLE GARAGE, DÉPENDANCES, ET JARD Lèves
Description
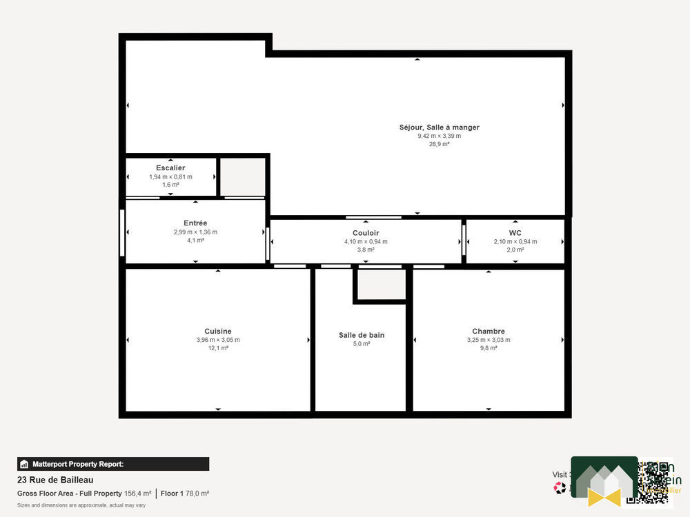
BELLE MAISON 8 PIÈCES AVEC DOUBLE GARAGE, DÉPENDANCES, ET JARDIN À LÈVES ! Opportunité pour une profession libérale grâce au local commercial ! Bienvenue dans votre futur chez-vous ! Nous sommes ravis de vous présenter cette maison à Lèves. Avec une surface habitable d'environ 130m². Profitez de notre visite virtuelle pour découvrir cette exclusivité située dans un quartier recherché de Lèves. Découvrez au rez-de-chaussée : - Entrée avec rangements, - Double pièce de vie salon-salle à manger avec accès extérieur, - Cuisine indépendante - 1 chambre, - Salle de bains, - WC indépendant A l'étage - 4 chambres, - 1 chambre avec salle de bain, - WC indépendant ESPACE EXTÉRIEUR: - Dépendances extérieures, - Double garage - Grand jardin sur l'arrière de la maison. - Local professionnel idéal pour une profession libérale, CÔTÉ CONFORT: - Volumes, - Double vitrage PVC, - Stockage et stationnements, - Diversification grâce au local. L'EMPLACEMENT : Située à quelques minutes à pied du centre ville de Lèves, vous profiterez de tout le centre commerçant ainsi que les services de santé et des écoles. Vous trouverez également de multiples arrêts de bus autour de la maison afin de se déplacer facilement sur toute l'agglomération Chartraine. Cette maison est proposée à la vente au prix de 380 000€ FAI, honoraires à la charge du vendeur. Prenez contact avec un agent au Noeud Pap' qui se fera un plaisir de vous faire visiter ce bien. Honoraires à la charge du vendeur. Classe énergie E, Classe climat E Montant estimé des dépenses annuelles d'énergie pour un usage standard : entre 3385.00 € et 4181.00 € sur les années 2021, 2022 et 2023 (abonnements compris). Les informations sur les risques auxquels ce bien est exposé sont disponibles sur le site Géorisques : georisques.gouv.fr. TTC Numéro de mandat : 716 Honoraires à la charge du Vendeur Bien En copropriété : NON
Informations clés
- Prix 380 000 €
- Référence ParuVendu 716-BIENSEREIN28
- Nombre de pièces 8 pièces
- Surface 129 m²
- Date DPE 25/06/2025
- Classe énergie E
- Indice d’émissions de gaz à effet de serre E
- Dépenses énergétiques Montant moyen pour 2021 : 3 783 €
- Ce bien fait l'objet d'un état des risques. Les informations sur les risques auxquels ce bien est exposé sont disponibles sur le site Géorisques : https://www.georisques.gouv.fr
Diagnostic énergétique


Pour la nouvelle notation (DPE à partir de juillet 2021), c'est la plus mauvaise des deux performances (énergie, climat) qui est retenue.