Vente Maison/villa 3 pièces Lhommaizé
Description
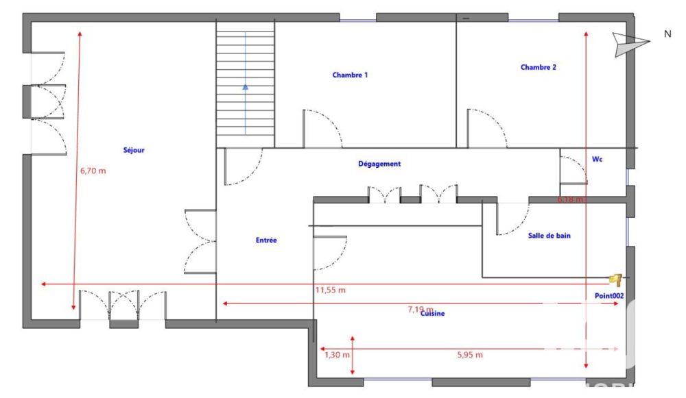
iad France - Nelly Maupin vous propose: A SAISIR ! Située sur la commune de Lhommaizé, à proximité de la Nationale 147, cette maison bénéficie d’un accès rapide aux axes principaux tout en offrant un beau potentiel grâce à son terrain et son sous-sol complet. Construite en 1972, la maison est implantée sur une parcelle de 1 699 m², légèrement en pente, partiellement clôturée, avec deux accès distincts : un côté nationale et un second en fond de terrain, un vrai plus pour les usages futurs. Elle développe environ 80 m² habitables et repose sur un sous-sol complet d’environ 85 m², offrant de nombreuses possibilités d’aménagement. L’espace de vie se compose d’une entrée, d’une cuisine indépendante d’environ 15 m², d’un salon-séjour lumineux de 25 m² avec deux baies vitrées donnant accès à des balcons, exposé sud-ouest, de deux chambres, d’une salle de bain et d’un toilette indépendant. La maison est raccordée au tout-à-l’égout. Le chauffage est assuré par un système central au fioul avec chaudière d’origine. Les menuiseries sont en double vitrage PVC et les volets roulants électriques centralisés. Des travaux de rénovation sont à prévoir, notamment au niveau de l’électricité, de l’isolation ainsi qu’une remise au goût du jour. Ce bien s’adresse idéalement à des acquéreurs souhaitant personnaliser leur future maison ou à des investisseurs recherchant un bien à fort potentiel. Grâce à son grand terrain, son sous-sol aménageable et ses deux accès, cette maison représente une opportunité intéressante sur le secteur. Pour plus de renseignements ou organiser une visite merci de me contacter par téléphone. Honoraires d'agence à la charge du vendeur. Information d'affichage énergétique sur ce bien : classe ENERGIE F indice 274 et classe CLIMAT F indice 86. Les informations sur les risques auxquels ce bien est exposé, y compris l'obligation légale de débroussaillement, sont disponibles sur le site Géorisques : La présente annonce immobilière a été rédigée sous la responsabilité éditoriale de Mme Nelly Maupin mandataire indépendant en immobilier (sans détention de fonds), agent commercial de la SAS I@D France immatriculé au RSAC de POITIERS sous le numéro 901199471, titulaire de la carte de démarchage immobilier pour le compte de la société I@D France SAS. CC HT Numéro de mandat : 1938958 Plus d'information : - Câble TV Honoraires à la charge du Vendeur Bien En copropriété : NON
Informations clés
- Prix 96 900 €
- Référence ParuVendu 1938958
- Nombre de pièces 3 pièces
- Surface 80 m²
- Date DPE 11/01/2026
- Classe énergie F
- Indice d’émissions de gaz à effet de serre F
Diagnostic énergétique


Pour la nouvelle notation (DPE à partir de juillet 2021), c'est la plus mauvaise des deux performances (énergie, climat) qui est retenue.