Maison type 4 Loches

PreviousNext

Description

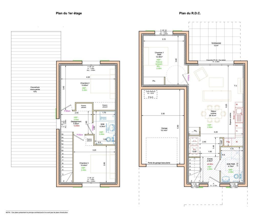
Située dans la charmante ville de Loches (37600), cette maison bénéficie d'un emplacement stratégique proche des commodités essentielles telles que les commerces, les écoles et les transports en commun. Loches, ville riche en histoire avec son château médiéval et son ambiance authentique, offre un cadre de vie agréable et paisible pour ses habitants. Cette maison de 82 m² sur un terrain de 202 m² propose un agencement optimal avec 4 pièces dont 3 chambres, idéal pour une famille. Au rez-de-chaussée, vous trouverez une entrée, un séjour ouvert sur la cuisine, 2 salles d'eau adaptée PMR et une chambre. À l'étage, un dégagement dessert deux chambres, une salle d'eau et un toilette. Un garage vient compléter ce bien offrant confort et fonctionnalité. Construction prévue pour 2026, cette maison représente une opportunité unique à Loches. Les informations sur les risques auxquels ce bien est exposé sont disponibles sur le site Géorisques : www.georisques.gouv.fr Prix de vente : 207 000 € Honoraires charge vendeur Contactez votre conseiller SAFTI : Philippe OLLIVIER - EI - Agent commercial immatriculé au RSAC de TOURS sous le numéro 520 326 034 Surface terrain : 202 m². Honoraires à la charge du Vendeur Bien En copropriété : NON

Informations clés

  • Prix 207 000 €
  • Référence ParuVendu 1555368_14445
  • Nombre de pièces 4 pièces
  • Surface 82 m²
  • Date DPE 01/01/1970
  • Classe énergie  NC
  • Indice d’émissions de gaz à effet de serre  NC