Maison - 4 pièce(s) - 71 m² Martigues

PreviousNext

Description

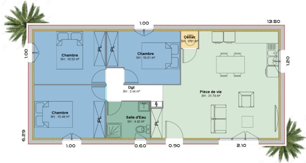
Maison de 4 pièces (71 m²) en vente à Martigues Idéalement située -  Maison neuve 4 pièces à vendre à Martigues (13500) avec une surface de 71 m² sur un terrain de 1 013 m². Elle dispose de trois chambres, d'une cuisine et d'une salle de bains. À proximité : gares, établissements scolaires, crèches, marchés, bibliothèques, tennis, bassin de natation, ports de plaisance, commerces, supérettes, épiceries, poissonneries et boucheries-charcuteries. Autoroute A55 et nationale N568 accessibles à 6 km. Mer Méditerranée à 3 km. Le prix de vente de cette maison de 4 pièces est de 430 000 €. Contactez notre agence (Andréa ANGELI : ) pour toute question sur la maison. Nos offres de terrains sont proposées en collaboration avec nos partenaires fonciers pour des maisons dans le cadre de la loi du 10/12/1990, selon disponibilité. Surface habitable : 71m2. Nombre de pièces : 4. Nombre de chambres : 3. Prix terrain seul : 295000 euros. Terrain proposé par un partenaire foncier selon disponibilités et autorisation de publicité au prix de 295 000 €. Hors droit d'enregistrement et frais de notaire. Terrain + Maison proposés au prix de 430 000 € (Hors branchements et raccordements, papiers peints, peintures, revêtement de sol dans les chambres. Tarif modifiable sans préavis). Etiquette énergie : A. Différents modèles disponibles pour ce terrain. Assurances et garanties du constructeur (RC professionnelle, décennale, dommage ouvrage, garantie de remboursement de l'acompte, livraison à prix et délai convenu) : AZUR & CONSTRUCTIONS Allée Charles Dullin 13500 Martigues Référence : AA2462476_1 Bien En copropriété : non

Informations clés

  • Prix 430 000 €
  • Référence ParuVendu 1005406_1005132_3699960
  • Nombre de pièces 4 pièces
  • Surface 71 m²
  • Date DPE 01/01/1970
  • Classe énergie  A
  • Indice d’émissions de gaz à effet de serre  NC