Vente Maison/villa 3 pièces Montpellier

PreviousNext

Description

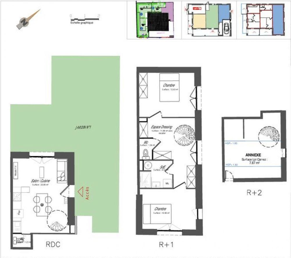
iad France - Thomas Normand () vous propose : MAISON 2 CHAMBRES + BUREAU - TRIPLEX - JARDIN - PLACE DE PARKING - IDEAL PRIMO-ACCEDANT - INVESTISSEUR - ELIGIBLE DEFICIT FONCIER - FIN DES TRAVAUX FEVRIER 2026 Sur la commune de Montpellier, quartier Alco, je vous propose cette maison de 63,40m2 environ avec son jardin privatif de 60m2 environ. Au rez-de-chaussée, vous entrez sur la pièce de vie avec sa cuisine ouverte et ses toilettes séparées. Au 1er étage, un dressing distribue les 2 chambres ainsi que la salle de bain et des toilettes séparées. Au 2ème et dernier étage, un bureau mansardé et spacieux de 16m2 environ au sol (soit 8m2 environ Loi Carrez) A l'extérieur, vous profiterez d'un jardin clos et d'une place de parking. Cette maison offre tout le confort moderne avec économie d'énergie, isolation thermique et phonique dans un secteur prisé proche des hôpitaux et des facultés de Pharmacie et Paul Valéry. La réception des travaux est prévue pour février 2025 et l'optimisation fiscale peut être étudiée et calculée au cas par cas. Honoraires d’agence à la charge du vendeur. Bien non soumis au DPE. Les informations sur les risques auxquels ce bien est exposé sont disponibles sur le site Géorisques : www.georisques.gouv.fr. La présente annonce immobilière a été rédigée sous la responsabilité éditoriale de M. Thomas Normand EI (ID 72879), mandataire indépendant en immobilier (sans détention de fonds), agent commercial de la SAS I@D France immatriculé au RSAC de MONTPELLIER sous le numéro 788464758, titulaire de la carte de démarchage immobilier pour le compte de la société I@D France SAS. Retrouvez tous nos biens sur notre site internet. www.iadfrance.fr CC HT Numéro de mandat : 1811612-1 Honoraires à la charge du Vendeur Bien En copropriété : NON

Informations clés

  • Prix 259 000 €
  • Référence ParuVendu 1811612-1
  • Nombre de pièces 3 pièces
  • Surface 63 m²
  • Date DPE 01/01/1970
  • Classe énergie  NC
  • Indice d’émissions de gaz à effet de serre  NC