Vente Maison/villa 6 pièces Nîmes
Description
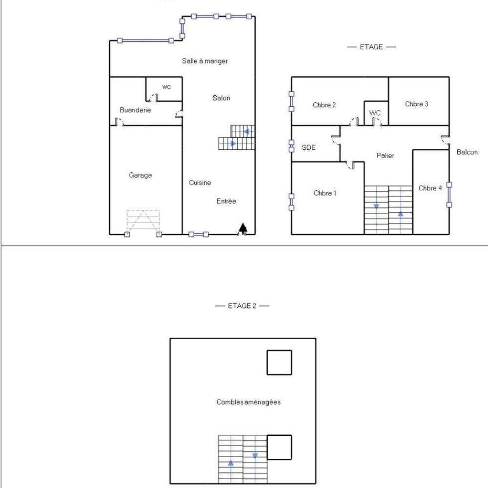
iad France - Mélanie Alonso vous propose: En exclusivité Maison Familiale de 146m² avec Jardin, Garage et Piscine à Nîmes **Description des Pièces:** Située à Nîmes, cette maison de 146m² sur 2 étages offre de généreux espaces de vie. Au rez-de-chaussée, vous trouverez une cuisine entièrement équipée ouverte sur la grande pièce de vie de 71m². Une buanderie, un WC et l’accès direct au garage complète le rez-de-chaussée. Au 1er étage, 4 chambres spacieuses, une salle d'eau, un WC et un accès direct sur la terrasse de 38m² avec une vue sur le jardin intérieur Au dernier étage les combles aménagées de 64m² (surface au sol) avec sa salle de bain ouverte. Un espace pour une suite parentale ou une chambre d’amis **Avantages:** - Jardin intérieur pour profiter des beaux jours en famille. - Garage pour plus de confort et sécurité. - Piscine pour se rafraîchir pendant les journées ensoleillées. - Cuisine équipée ouverte sur le salon pour des moments conviviaux. - Terrasse pour les repas en plein air et les moments de détente. - Bon état général de la maison, prête à accueillir une nouvelle famille. **Localisation et Commodités:** Proche des écoles, des commerces et des grands axes routiers, cette propriété bénéficie d'un emplacement stratégique. Les transports en commun tram/bus sont également facilement accessibles. **Informations complémentaires** Rafraîchissement général à prévoir Système de climatisation existant mais hors service, 2 panneaux roulants hors service (devis réalisés) Ne manquez pas cette opportunité unique d'acquérir une maison familiale idéalement située à Nîmes. Contactez-moi pour organiser une visite et laissez-vous séduire par ce bien d'exception ! **Inter-agence avec plaisir** Honoraires d'agence à la charge du vendeur. Information d'affichage énergétique sur ce bien : classe ENERGIE C indice 159 et classe CLIMAT A indice 4. Les informations sur les risques auxquels ce bien est exposé, y compris l'obligation légale de débroussaillement, sont disponibles sur le site Géorisques : La présente annonce immobilière a été rédigée sous la responsabilité éditoriale de Mme Mélanie Alonso mandataire indépendant en immobilier (sans détention de fonds), agent commercial de la SAS I@D France immatriculé au RSAC de NIMES sous le numéro 943948828, titulaire de la carte de démarchage immobilier pour le compte de la société I@D France SAS. CC HT Numéro de mandat : 1873427 Plus d'information : - Câble TV - Piscine Honoraires à la charge du Vendeur Bien En copropriété : NON
Informations clés
- Prix 255 000 €
- Référence ParuVendu 1873427
- Nombre de pièces 6 pièces
- Surface 146 m²
- Date DPE 15/04/2025
- Classe énergie C
- Indice d’émissions de gaz à effet de serre A
- Dépenses énergétiques Montant moyen pour 2023 : 1 900 €
Diagnostic énergétique


Pour la nouvelle notation (DPE à partir de juillet 2021), c'est la plus mauvaise des deux performances (énergie, climat) qui est retenue.