Maison à fort potentiel dans un quartier calme Olivet

PreviousNext

Description

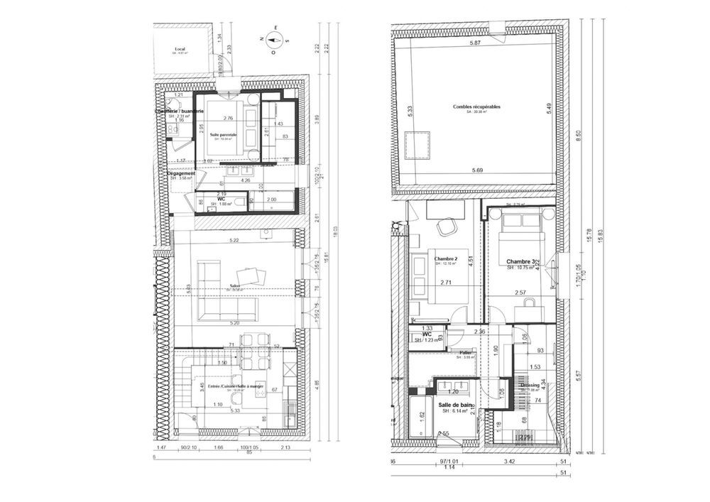
Située dans un environnement paisible, venez découvrir cette maison avec un fort potentiel à rénover. Elle se compose actuellement au rez-de-chaussée d'une entrée, d'un vaste séjour ouvert sur la cuisine lumineux, de plus de 40m², d'une dépendance accessible de la maison (aménagée en suite parentale sur les plans) avec un grenier. L'étage se compose actuellement d'un pallier, d'une grande chambre de plus de 22m² avec un dressing de 7m². Les plans en photo constituent une proposition d'aménagement de la maison (afin d'avoir 3 chambres minimum), en modifiant les espaces actuels. Pour en savoir plus ou visiter, contactez votre conseiller via les coordonnées se trouvant en dernière photo de l'annonce. Honoraires inclus de 5.27% TTC à la charge de l'acquéreur. Prix hors honoraires 189 900 €. Non soumis au DPE. Les informations sur les risques auxquels ce bien est exposé sont disponibles sur le site Géorisques : georisques.gouv.fr. Ce bien vous est proposé par un agent commercial (Entreprise individuelle). Votre conseiller IMMODREAM : Damien LERICOLAIS Agent commercial (Entreprise individuelle) RCP SEGAP LLOYD'S TTC Numéro de mandat : 3514 Honoraires à la charge de l'acquéreur Pourcentage des Honoraires à la charge de l'Acquéreur : 5.27 % Bien En copropriété : NON

Informations clés

  • Prix 199 900 €
  • Référence ParuVendu VM5524-IMMODREAM
  • Nombre de pièces 4 pièces
  • Surface 85 m²
  • Date DPE 01/01/1970
  • Classe énergie  NC
  • Indice d’émissions de gaz à effet de serre  NC