Maison - 4 pièce(s) - 95 m² Ploemel

PreviousNext

Description

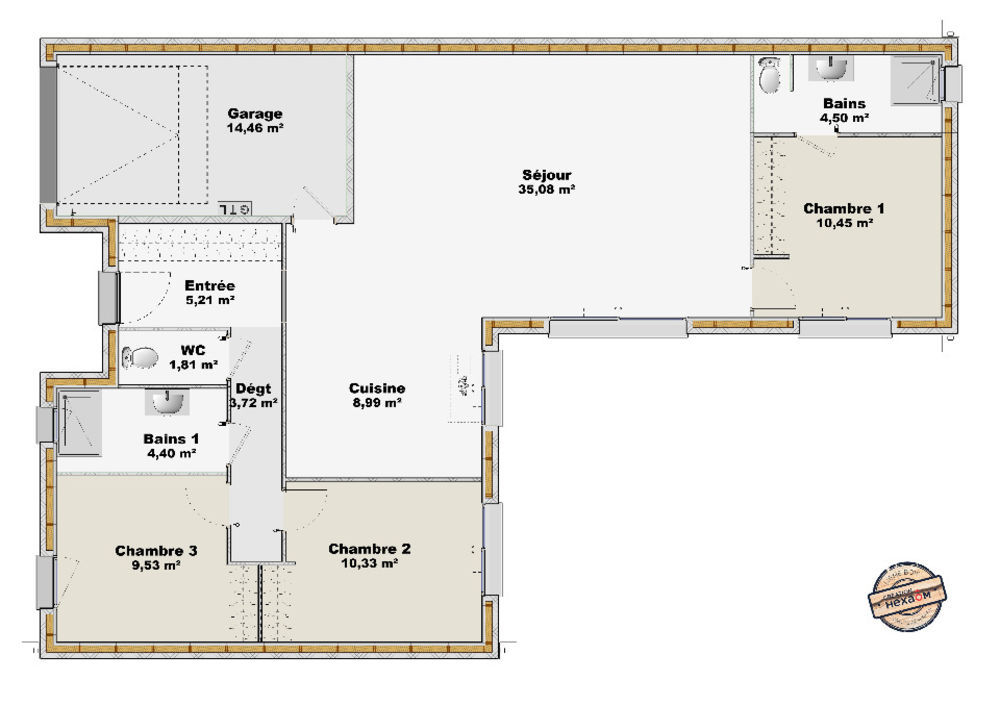
VENTE : maison T4 (95 m²) à Ploemel QUARTIER RECHERCHÉ - MAISON 4 PIÈCES OSSATURE BOIS À deux pas de la gare, nous sommes heureux de vous proposer cette maison de 4 pièces de plain-pied de 95 m² dans un quartier attractif de Ploemel (56400). Son intérieur compte trois chambres, une cuisine et deux salles de bains. Elle est proposée à l'achat pour 366 345 €. Contactez Anne-Sophie LAPART () pour tout renseignement sur cette maison ou sur les démarches à suivre. Maisons de l'Avenir Lorient vous accompagne à toutes les étapes de l'achat et dans tous vos projets immobiliers. Nos offres de terrains sont proposées en collaboration avec nos partenaires fonciers pour des maisons dans le cadre de la loi du 10/12/1990, selon disponibilité. Surface habitable : 95m2. Nombre de pièces : 4. Nombre de chambres : 3. Prix terrain seul : 124900 euros. Maisons de l’Avenir, constructeur de maisons individuelles, propose en collaboration avec ses partenaires fonciers, une sélection de terrains constructibles, selon disponibilité, pour la construction de maisons neuves définies par le constructeur, avec un contrat de construction de maison individuelle, dans le cadre de la loi du 19/12/1990. Prix net, hors frais notariés, d'enregistrement et de publicité foncièreTerrain proposé au prix de : 124 900 €Maison proposée au prix de : 241 445 €Etiquette énergie : A. Assurances et garanties du constructeur (RC professionnelle, décennale, dommage ouvrage, Garantie de livraison à prix et délai convenu). MAISONS DE L'AVENIR 158 rue du Colonel Muller 56100 Lorient Référence : ASL2303546_4 Bien En copropriété : non

Informations clés

  • Prix 366 345 €
  • Référence ParuVendu 1005374_1005127_3536661
  • Nombre de pièces 4 pièces
  • Surface 95 m²
  • Date DPE 01/01/1970
  • Classe énergie  A
  • Indice d’émissions de gaz à effet de serre  NC