Reynies, Maison et local commercial avec un fort potentiel Reyniès
Description
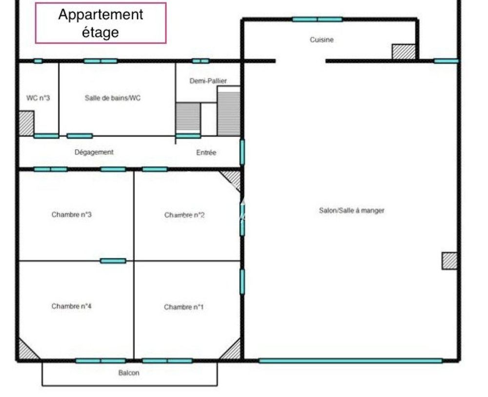
Située à Reyniès (82370), cette maison bénéficie d'un emplacement idéal, charmant village offrant un cadre de vie paisible. En plein coeur du village, la propriété profite d'une atmosphère conviviale et de la proximité de la nature environnante. La maison s'étend sur une parcelle de 493 m² et comprend deux places de parking ainsi qu'une surface totale de 330 m² répartie sur 7 pièces, dont une pièce de vie de plus de 80m2 et 4 chambres et 2. Dotée d'une surface commerciale en rez-de-chaussée, cette ensemble offre un potentiel intéressant pour toute activité commerciale telle qu'un bar, un restaurant, une épicerie ou autre. L'intérieur de la maison est à rénover mais présente un fort potentiel. Les vastes espaces offrent de multiples possibilités d'aménagement, tandis que les dépendances et l'arrière-cour ajoutent une dimension supplémentaire à cette propriété. Avec sa surface généreuse et ses caractéristiques uniques, cette maison à Reyniès représente une opportunité exceptionnelle pour créer un espace de vie sur mesure alliant résidence et activité commerciale. Les informations sur les risques auxquels ce bien est exposé sont disponibles sur le site Géorisques : www.georisques.gouv.fr Prix de vente : 225 000 € Honoraires charge vendeur Contactez votre conseiller SAFTI : Frederic VAN BREMPT - EI - Agent commercial immatriculé au RSAC de Montauban sous le numéro 904 445 061 Surface terrain : 493 m². Honoraires à la charge du Vendeur Bien En copropriété : NON
Informations clés
- Prix 225 000 €
- Référence ParuVendu 1482902_15570
- Nombre de pièces 7 pièces
- Surface 330 m²
- Date DPE 10/07/2025
- Classe énergie E
- Indice d’émissions de gaz à effet de serre E
- Dépenses énergétiques Montant moyen pour 2021 : 5 281 €
Diagnostic énergétique


Pour la nouvelle notation (DPE à partir de juillet 2021), c'est la plus mauvaise des deux performances (énergie, climat) qui est retenue.