Maison - 6 pièce(s) - 98 m² Rueil-Malmaison

PreviousNext

Description

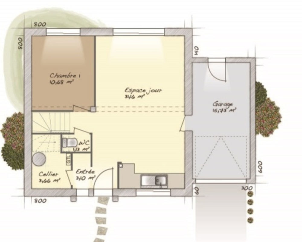
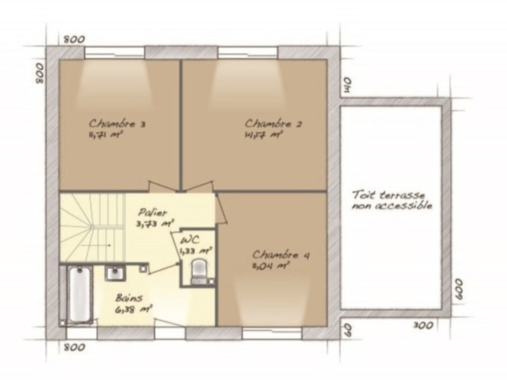
VENTE d'une maison de 6 pièces (98 m²) à Rueil-Malmaison Paris à 10 min (RER A) -  À Rueil-Malmaison (92500), maison neuve à vendre de 6 pièces, 2 niveaux, 98 m² de surface et 225 m² de terrain. Elle inclut quatre chambres, une cuisine et une salle de bains. À dix minutes : RER (lignes A et C), gares, établissements scolaires, crèche, IFP school, bibliothèque, boulangeries, commerces, supermarchés, boucheries-charcuteries et bureau de poste. Marché Place Jaurès hebdomadaire. Cette maison de 6 pièces est proposée à l'achat pour 818 000 €. N'hésitez pas à prendre contact avec Christophe MONTANIER (tél : ) pour toute information sur la maison, sur les démarches à suivre ou sur les modalités de vente. Maisons Balency Saint-Maur-des-Fossés vous accompagne dans tous vos projets immobiliers et dans toutes vos démarches. Annonce proposée par un Agent Commercial Partenaire. Nos offres de terrains sont proposées en collaboration avec nos partenaires fonciers pour des maisons dans le cadre de la loi du 10/12/1990, selon disponibilité. Surface habitable : 98m2. Nombre de pièces : 6. Nombre de chambres : 4. Prix terrain seul : 549000 euros. Terrain proposé par un partenaire foncier selon disponibilités et autorisation de publicité au prix de 549 000 €. Hors droit d'enregistrement et frais de notaire. Maison proposée, avec un contrat de construction de maison individuelle, dans le cadre de la loi du 19/12/1990, au prix de 269 000 € (Hors branchements et raccordements, papiers peints, peintures, revêtement de sol dans les chambres, qui sont chiffrés dans les travaux qui restent à charge du client. Tarif modifiable sans préavis). Étiquette énergie : A. Différents modèles disponibles pour ce terrain. Assurances et garanties du constructeur comprises (RC professionnelle, décennale, dommage ouvrage). MAISONS BALENCY 12 avenue de la république 94100 Saint-Maur-des-Fossés Référence : CM2286278_1 Bien En copropriété : non

Informations clés

  • Prix 818 000 €
  • Référence ParuVendu 1041290_1005120_3518755
  • Nombre de pièces 6 pièces
  • Surface 98 m²
  • Date DPE 01/01/1970
  • Classe énergie  A
  • Indice d’émissions de gaz à effet de serre  NC