SUPERBE LONGERE RENOVEE - SAINT AUBIN DES BOIS Saint-Aubin-des-Bois
Description
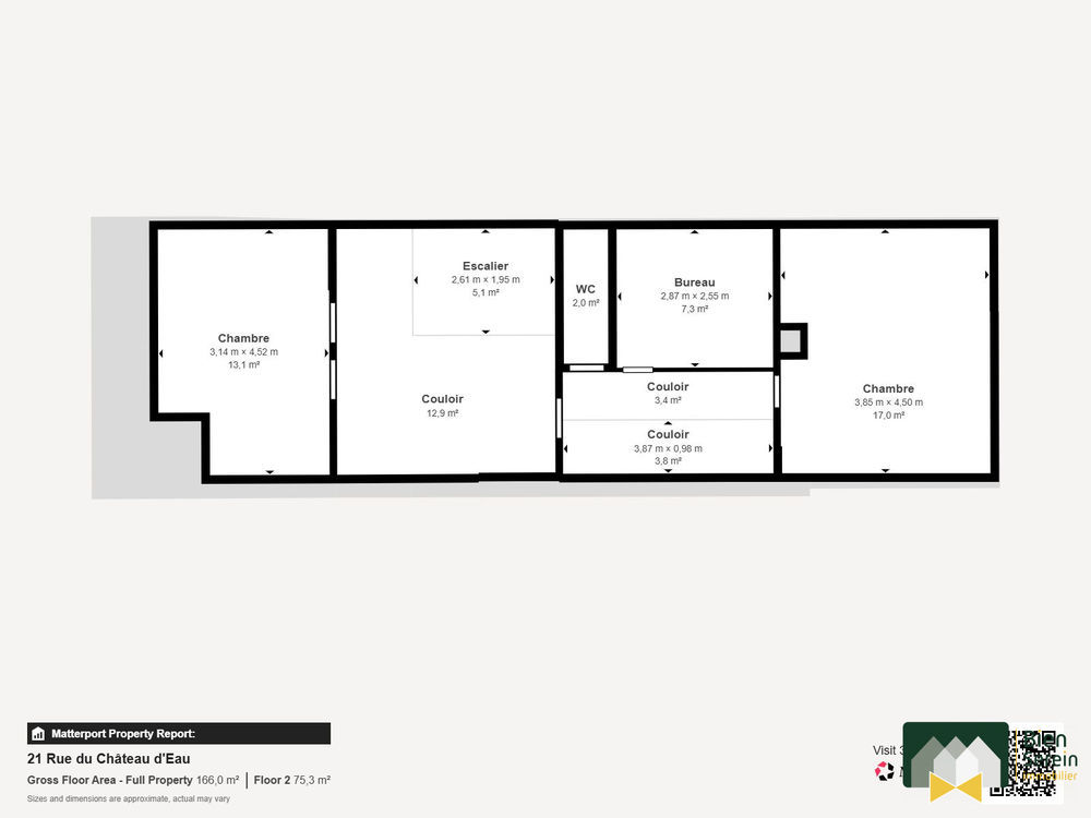
SUPERBE LONGÈRE RÉNOVÉE - SAINT AUBIN DES BOIS ! Bienvenue dans votre futur chez-vous ! Alliant authenticité et confort, c'est un coup de coeur assuré Située à 10 minutes de Chartres et à quelques kilomètres de nombreux services, vous bénéficierez d'un environnement prisé pour son calme et sa proximité immédiate des commodités. Profitez de notre visite virtuelle pour découvrir cette propriété lumineuse accompagnée de ses magnifiques poutres apparentes. Découvrez au rez-de-chaussée : - Une vaste entrée, - Un grand séjour chaleureux avec poêle à bois et accès à la terrasse, - Une cuisine équipée et améagée avec cellier attenant, - Un wc indépendant, - Une salle d'eau avec douche à l'italienne, - Grande chambre avec dressing. Au premier étage, le palier dessert : - Deux chambres, - Un bureau - Un wc indépendant Espace extérieur : - Un grand jardin avec terrasse et marre (à remplir) - Un espace de stationnement, - Un garage avec porte motorisée et portail motorisé, - Jardin clos et sans vis à vis Côté confort : - Maison vivable de plain pied, - Chauffage pompe à chaleur et poêle à bois, - Ouvertures en PVC double vitrage, L'emplacement : Située dans un environnement paisible, cette belle longère est également à proximité de Chartres ou de Courville sur Eure ce qui offre une grande facilité d'accès à tout types de services. De plus vous retrouverez les bus scolaires au sein du village ainsi qu'une gare à trois km de la maison (ligen Paris - Le Mans). N'hésitez pas à contacter votre agent au Noeud Pap' pour obtenir plus d'informations et visiter cette propriété ! Honoraires à la charge du vendeur. Classe énergie E, Classe climat B Montant estimé des dépenses annuelles d'énergie pour un usage standard : entre 2016.00 € et 2728.00 € sur les années 2021, 2022 et 2023 (abonnements compris). Les informations sur les risques auxquels ce bien est exposé sont disponibles sur le site Géorisques : georisques.gouv.fr. TTC Numéro de mandat : 758 Honoraires à la charge du Vendeur Bien En copropriété : NON
Informations clés
- Prix 239 000 €
- Référence ParuVendu 758-BIENSEREIN28
- Nombre de pièces 5 pièces
- Surface 116 m²
- Date DPE 08/10/2025
- Classe énergie E
- Indice d’émissions de gaz à effet de serre B
- Dépenses énergétiques Montant moyen pour 2021 : 2 372 €
- Ce bien fait l'objet d'un état des risques. Les informations sur les risques auxquels ce bien est exposé sont disponibles sur le site Géorisques : https://www.georisques.gouv.fr
Diagnostic énergétique


Pour la nouvelle notation (DPE à partir de juillet 2021), c'est la plus mauvaise des deux performances (énergie, climat) qui est retenue.