Maison - 7 pièce(s) - 160 m² Saint-Pierre-de-Bailleul

PreviousNext

Description

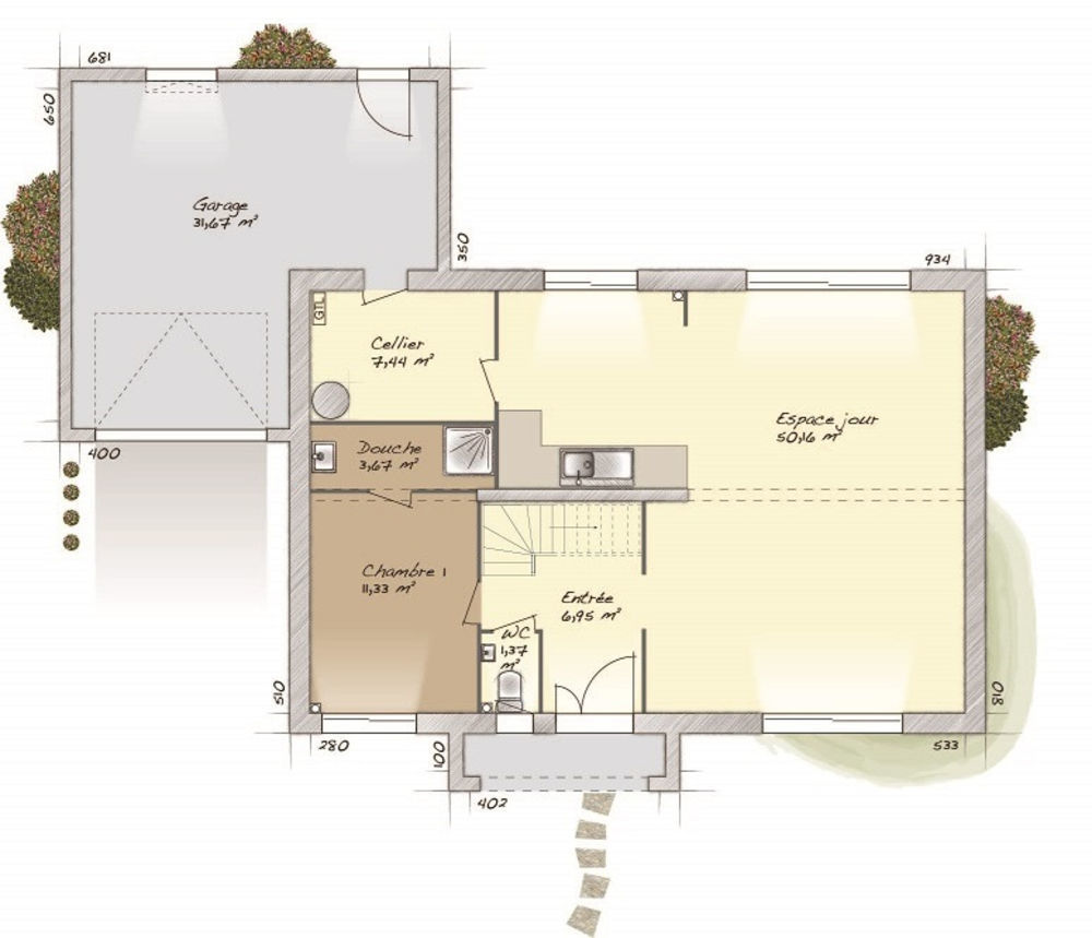
A construire : maison F7 (160 m²) à Saint-Pierre-de-Bailleul Paris à 1 h (Transilien J, Vernon-Giverny) -  Idéalement située dans Saint-Pierre-de-Bailleul (27920), maison neuve à vendre de 7 pièces, 2 niveaux, 160 m² de surface et 1 000 m² de terrain. Elle propose quatre chambres, une cuisine et deux salles de bains. À proximité : gares (Vernon-Giverny et Gaillon-Aubevoye), École Primaire la Grâce. Autoroute A13 accessible à 6 km. Évreux à 21 km. Cette maison de 7 pièces est à vendre pour la somme de 410 679 €. Contactez notre agence (Célia RENIER : ) pour toute information sur la maison. Donnez vie à vos projets immobiliers avec Maisons Balency Boos. Annonce proposée par un Agent Commercial Partenaire. Nos offres de terrains sont proposées en collaboration avec nos partenaires fonciers pour des maisons dans le cadre de la loi du 10/12/1990, selon disponibilité. Surface habitable : 160m2. Nombre de pièces : 7. Nombre de chambres : 4. Prix terrain seul : 88000 euros. Terrain proposé par un partenaire foncier selon disponibilités et autorisation de publicité au prix de 88 000 €. Hors droit d'enregistrement et frais de notaire. Terrain + Maison proposés au prix de 322 679 € (Hors branchements et raccordements, papiers peints, peintures, revêtement de sol dans les chambres. Tarif modifiable sans préavis). Etiquette énergie : A. Différents modèles disponibles pour ce terrain. Assurances et garanties du constructeur (RC professionnelle, décennale, dommage ouvrage, garantie de remboursement de l'acompte, livraison à prix et délai convenu) : HEXAOM Services est enregistré auprès de l'ORIAS en tant que Courtier en financement, Niveau 1, sous le numéro 14001345. MAISONS BALENCY Lotissement de la Forge Féret 76520 Boos Référence : RC2303866_2 Bien En copropriété : non

Informations clés

  • Prix 410 679 €
  • Référence ParuVendu 1005278_1005120_3537079
  • Nombre de pièces 7 pièces
  • Surface 160 m²
  • Date DPE 01/01/1970
  • Classe énergie  A
  • Indice d’émissions de gaz à effet de serre  NC