Vente Maison de ville 4 pièces Salon-de-Provence
Description
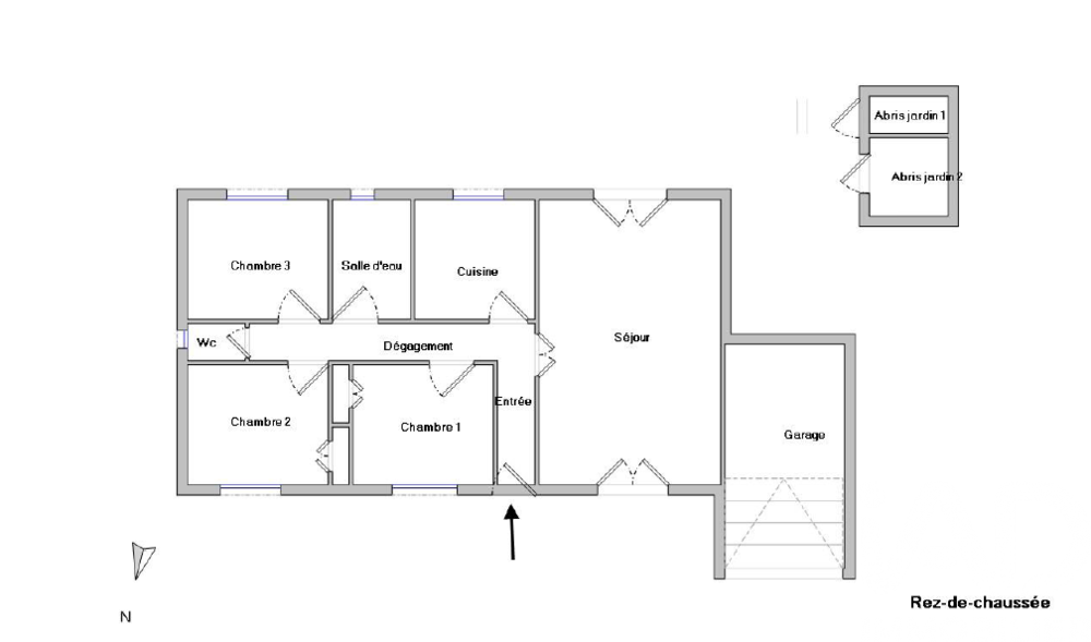
iad France - Alain Castany vous propose: À deux pas du centre de Salon-de-Provence, découvrez cette charmante maison de plain-pied de 90 m² ( 89.77 carrez ) , offrant un cadre de vie paisible et recherché. Dès l’entrée, vous avez un séjour traversant de 27,48 m², idéal pour partager des moments conviviaux en famille ou entre amis. La cuisine séparée permet un aménagement fonctionnel et confortable. Côté nuit, la maison propose trois chambres , une salle d’eau, et un WC indépendant . À l’extérieur, vous profiterez d’une agréable terrasse de 25 m², parfaite pour les beaux jours, ainsi que d’un jardin qui entoure la maison, apportant calme et intimité. Un garage mitoyen et une place de stationnement sécurisée par un grand portail complètent ce bien et facilitent le quotidien. Les prestations incluent la climatisation, des volets roulants centralisés, des fenêtres en double vitrage, une isolation des combles récente ainsi qu’un enduit extérieur refait. En bon état général, cette maison offre un fort potentiel et ne demande qu’un rafraîchissement pour être remise au goût du jour.Les cloisons n'étant par porteuses , un aménagement plus important pourra être fait sans trop de travaux. **Avantages:** - Jardin arboré pour des moments de détente en plein air - Garage pour un stationnement sécurisé - Situation idéale à proximité du centre-ville, des commerces et des commodités - Construction de qualité datant de 1988, en bon état général - Environnement calme et résidentiel - Expositions Est, Ouest et Sud offrant une belle luminosité - Proximité des points d'intérêt tels que les autoroutes et les commerces Cette maison de ville bénéficie de prestations avec des équipements de confort tels que la fibre optique, le câble TV et un système de ventilation mécanique. La sécurité est assurée avec un système d'alarme. Je vous attend pour avoir le plaisir de vous présenter cette maison et son jardin. Honoraires d'agence à la charge du vendeur. Information d'affichage énergétique sur ce bien : classe ENERGIE C indice 157 et classe CLIMAT B indice 6. Les informations sur les risques auxquels ce bien est exposé, y compris l'obligation légale de débroussaillement, sont disponibles sur le site Géorisques : La présente annonce immobilière a été rédigée sous la responsabilité éditoriale de M Alain Castany mandataire indépendant en immobilier (sans détention de fonds), agent commercial de la SAS I@D France immatriculé au RSAC de bayonne sous le numéro 924882137, titulaire de la carte de démarchage immobilier pour le compte de la société I@D France SAS. CC HT Numéro de mandat : 1954519 Plus d'information : - Alarme - Câble TV Honoraires à la charge du Vendeur Bien En copropriété : NON
Informations clés
- Prix 339 200 €
- Référence ParuVendu 1954519
- Nombre de pièces 4 pièces
- Surface 90 m²
- Date DPE 23/02/2026
- Classe énergie C
- Indice d’émissions de gaz à effet de serre B
Diagnostic énergétique


Pour la nouvelle notation (DPE à partir de juillet 2021), c'est la plus mauvaise des deux performances (énergie, climat) qui est retenue.