Maison - 5 pièce(s) - 123 m² Sarriac-Bigorre

PreviousNext

Description

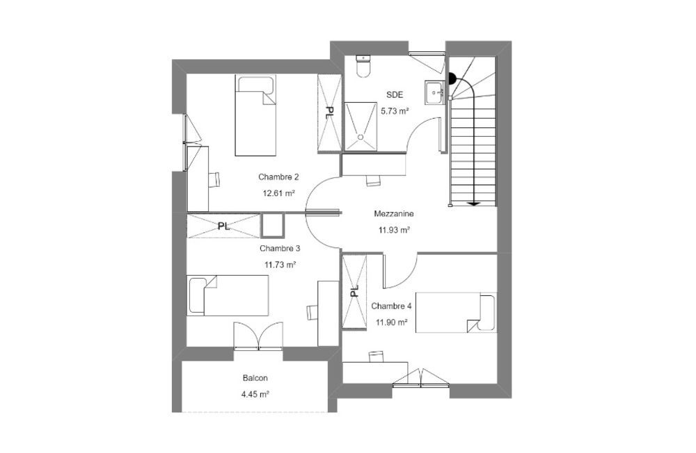
VENTE : maison T4 (90 m²) à Sarriac-Bigorre IDÉALEMENT SITUÉE - MAISON 4 PIÈCES NEUVE Maisons Bruno Petit GHPA vous propose cette maison de 4 pièces de plain-pied de 90 m². Cette maison compte trois chambres, une cuisine et une salle de bains. Le terrain du bien est de 1525m². Maison proposée à partir de 282000€ Hors frais de notaire. A composer selon votre projet et vos envies. N'hésitez pas à prendre contact avec notre agence (Demandez Laurent BAZIN Bruno Petit à Juillan) pour toute question sur la maison, sur les démarches à suivre ou sur les modalités de vente. Nos offres de terrains sont proposées en collaboration avec nos partenaires fonciers pour des maisons dans le cadre de la loi du 10/12/1990, selon disponibilité. Surface habitable : 123m2. Nombre de pièces : 5. Nombre de chambres : 4. Prix terrain seul : 26000 euros. Terrain proposé par un partenaire foncier selon disponibilités et autorisation de publicité au prix de 26 000 €. Hors droit d'enregistrement et frais de notaire. Maison proposée, avec un contrat de construction de maison individuelle, dans le cadre de la loi du 19/12/1990, au prix de 256 000 € (Hors branchements et raccordements, papiers peints, peintures, revêtement de sol dans les chambres, qui sont chiffrés dans les travaux qui restent à charge du client. Tarif modifiable sans préavis). Étiquette énergie : A. Différents modèles disponibles pour ce terrain. Assurances et garanties du constructeur comprises (RC professionnelle, décennale, dommage ouvrage). MAISONS BRUNO PETIT GHPA 9 route de Lourdes 65290 Juillan Référence : LB2272917_1 Bien En copropriété : non

Informations clés

  • Prix 282 000 €
  • Référence ParuVendu 1005397_1005129_3505006
  • Nombre de pièces 5 pièces
  • Surface 123 m²
  • Date DPE 01/01/1970
  • Classe énergie  A
  • Indice d’émissions de gaz à effet de serre  NC