Maison - 4 pièce(s) - 90 m² Sénac

PreviousNext

Description

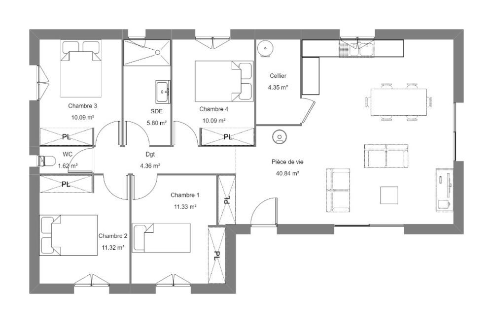
Construction maison 90 m2 avec 4 chambres à SENAC IDÉALEMENT SITUÉE - MAISON 5 PIÈCES Maisons Bruno Petit GHPA Juillan vous propose cette maison de plain-pied de 100 m². Cette maison compte trois chambres, une cuisine et une salle de bains. Le terrain du bien est de 3650 m². Maison proposée à partir de 225000€. A composer selon votre projet. N'hésitez pas à prendre contact avec notre agence (Laurent BAZIN : ) Maisons Bruno PETIT à Juillan pour toute question sur la maison, sur les démarches à suivre ou sur les modalités de vente. Nos offres de terrains sont proposées en collaboration avec nos partenaires fonciers pour des maisons dans le cadre de la loi du 10/12/1990, selon disponibilité. Surface habitable : 90m2. Nombre de pièces : 4. Nombre de chambres : 3. Prix terrain seul : 55500 euros. Terrain proposé par un partenaire foncier selon disponibilités et autorisation de publicité au prix de 55 500 €. Hors droit d'enregistrement et frais de notaire. Maison proposée, avec un contrat de construction de maison individuelle, dans le cadre de la loi du 19/12/1990, au prix de 169 500 € (Hors branchements et raccordements, papiers peints, peintures, revêtement de sol dans les chambres, qui sont chiffrés dans les travaux qui restent à charge du client. Tarif modifiable sans préavis). Étiquette énergie : A. Différents modèles disponibles pour ce terrain. Assurances et garanties du constructeur comprises (RC professionnelle, décennale, dommage ouvrage). MAISONS BRUNO PETIT GHPA 9 route de Lourdes 65290 Juillan Référence : LB2272999_2 Bien En copropriété : non

Informations clés

  • Prix 225 000 €
  • Référence ParuVendu 1005397_1005129_3505062
  • Nombre de pièces 4 pièces
  • Surface 90 m²
  • Date DPE 01/01/1970
  • Classe énergie  A
  • Indice d’émissions de gaz à effet de serre  NC