Vente Maison/villa 5 pièces Serres-Castet
Description
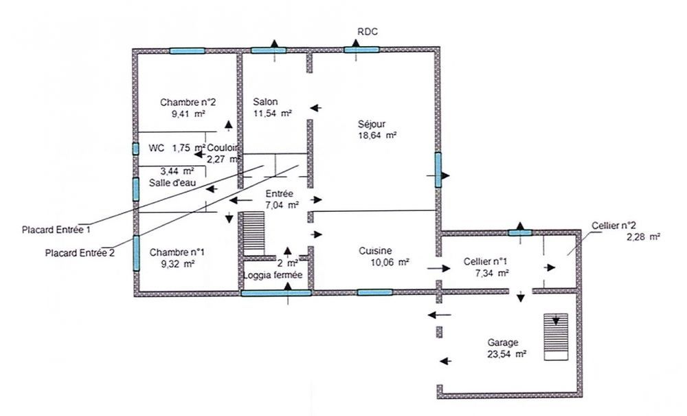
iad France - Sörenn Ané vous propose: À la recherche d’une maison familiale sur la belle commune de Serres Castet ? Venez découvrir ce bien idéalement situé, au calme et avec toutes les commodités à côté. Cette maison de 140 m2 se compose au rdc d’une grande entrée qui donne d’un côté sur le salon / salle à manger ouvert sur la cuisine avec son cellier / buanderie attenant . Pour le coin nuit , deux chambres , 1 salle d’eau et un wc. À l’étage , un grand palier dessert 2 autres chambres avec une salle de bain et un wc . À l’extérieur , un beau jardin arboré et intimiste de 518 m2 et un grand garage de 23 m2 complètent cette maison aux nombreux atouts. Une visite s’impose ! Honoraires d'agence à la charge du vendeur. Information d'affichage énergétique sur ce bien : classe ENERGIE D indice 194 et classe CLIMAT C indice 27. Les informations sur les risques auxquels ce bien est exposé, y compris l'obligation légale de débroussaillement, sont disponibles sur le site Géorisques : La présente annonce immobilière a été rédigée sous la responsabilité éditoriale de Mme Sörenn Ané mandataire indépendant en immobilier (sans détention de fonds), agent commercial de la SAS I@D France immatriculé au RSAC de PAU sous le numéro 920 484 995, titulaire de la carte de démarchage immobilier pour le compte de la société I@D France SAS. CC HT Numéro de mandat : 1863734 Honoraires à la charge du Vendeur Bien En copropriété : NON
Informations clés
- Prix 335 000 €
- Référence ParuVendu 1863734
- Nombre de pièces 5 pièces
- Surface 140 m²
- Date DPE 16/05/2023
- Classe énergie D
- Indice d’émissions de gaz à effet de serre C
- Dépenses énergétiques Montant moyen pour 2021 : 1 621 €
Diagnostic énergétique


Pour la nouvelle notation (DPE à partir de juillet 2021), c'est la plus mauvaise des deux performances (énergie, climat) qui est retenue.