Maison - 6 pièce(s) - 122 m² Soignolles-en-Brie

PreviousNext

Description

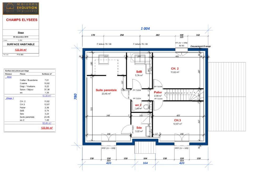
Contactez Guillaume Bordes de l'agence Maisons Evolution de Mareuil-lès-Meaux pour avoir plus d'informations sur ce projet. Découvrez cette très jolie maison moderne de 122 m² habitables, aux dernières normes énergétiques, idéalement située sur la commune de Soignolles en Brie. Elle est composée de 3 grandes chambres dont une grande suite parentale avec salle d'eau, d'une seconde salle de bains, de deux WC séparés et d'un grand salon-séjour lumineux avec cuisine ouverte donnant sur un vaste cellier/buanderie. Il est possible d'y ajouter un garage ou un carport. Les plans sont entièrement modifiables selon vos souhaits, en agence ou visioconférence. Nous vous proposons un véritable accompagnement de qualité tout au long de votre projet. Dessinons ensemble votre future maison ! Tel : Annonce proposée par un Agent Commercial Partenaire. Nos offres de terrains sont proposées en collaboration avec nos partenaires fonciers pour des maisons dans le cadre de la loi du 10/12/1990, selon disponibilité. Surface habitable : 122m2. Nombre de pièces : 6. Nombre de chambres : 4. Prix terrain seul : 155000 euros. Terrain proposé par un partenaire foncier selon disponibilités et autorisation de publicité au prix de 155 000 €. Hors droit d'enregistrement et frais de notaire. Maison proposée, avec un contrat de construction de maison individuelle, dans le cadre de la loi du 19/12/1990, au prix de 219 900 € (Hors branchements et raccordements, papiers peints, peintures, revêtement de sol dans les chambres, qui sont chiffrés dans les travaux qui restent à charge du client. Tarif modifiable sans préavis). Étiquette énergie : A. Différents modèles disponibles pour ce terrain. Assurances et garanties du constructeur comprises (RC professionnelle, décennale, dommage ouvrage). MAISONS EVOLUTION 1 Rue Pierre de Ronsard 77100 Mareuil-lès-Meaux Référence : GB2307232_3 Bien En copropriété : non

Informations clés

  • Prix 374 900 €
  • Référence ParuVendu 1055113_1005141_3540573
  • Nombre de pièces 6 pièces
  • Surface 122 m²
  • Date DPE 01/01/1970
  • Classe énergie  A
  • Indice d’émissions de gaz à effet de serre  NC