Maison - 4 pièce(s) - 90 m² Soues

PreviousNext

Description

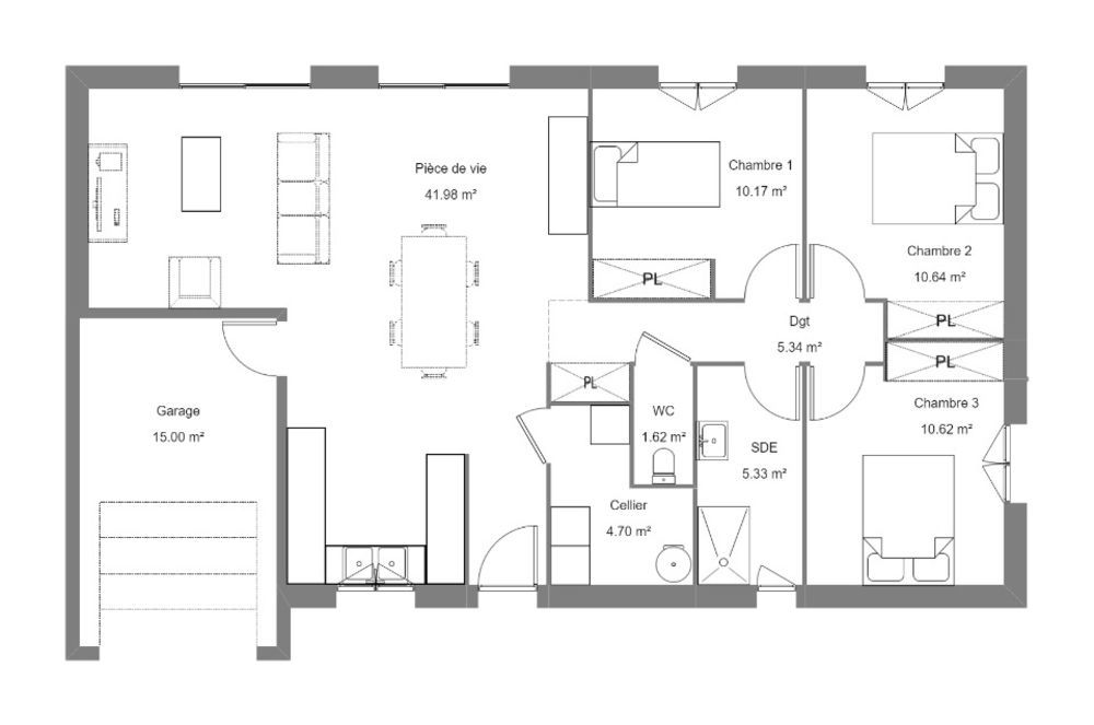
VENTE : maison de 4 pièces (90 m²) à Soues Idéalement située -  À Soues (65430), maison neuve à vendre de 4 pièces, 90 m² de surface et 734 m² de terrain. Son intérieur propose trois chambres, une cuisine et une salle de bains. À proximité : gare (Tarbes), école primaire École Élémentaire Barrouquere Teilh, tennis, boulangeries, commerce, boucheries-charcuteries, bureau de poste et épicerie. Autoroute A64 à 1 km. Tarbes à 5 km. Le prix de vente de cette maison de 4 pièces est de 223 500 €. Contactez notre agence (CAUSSIEU Vincent : ) pour tout renseignement sur la maison ou sur les modalités de vente. Maisons Bruno Petit GHPA Juillan est là pour vous accompagner à toutes les étapes de votre projet. Nos offres de terrains sont proposées en collaboration avec nos partenaires fonciers pour des maisons dans le cadre de la loi du 10/12/1990, selon disponibilité. Surface habitable : 90m2. Nombre de pièces : 4. Nombre de chambres : 3. Prix terrain seul : 65000 euros. Terrain proposé par un partenaire foncier selon disponibilités et autorisation de publicité au prix de 65 000 €. Hors droit d'enregistrement et frais de notaire. Maison proposée, avec un contrat de construction de maison individuelle, dans le cadre de la loi du 19/12/1990, au prix de 158 500 € (Hors branchements et raccordements, papiers peints, peintures, revêtement de sol dans les chambres, qui sont chiffrés dans les travaux qui restent à charge du client. Tarif modifiable sans préavis). Étiquette énergie : A. Différents modèles disponibles pour ce terrain. Assurances et garanties du constructeur comprises (RC professionnelle, décennale, dommage ouvrage). MAISONS BRUNO PETIT GHPA 9 route de Lourdes 65290 Juillan Référence : VC2279453_1 Bien En copropriété : non

Informations clés

  • Prix 223 500 €
  • Référence ParuVendu 1005397_1005129_3511738
  • Nombre de pièces 4 pièces
  • Surface 90 m²
  • Date DPE 01/01/1970
  • Classe énergie  A
  • Indice d’émissions de gaz à effet de serre  NC