Maison - 5 pièce(s) - 102 m² Talensac

PreviousNext

Description

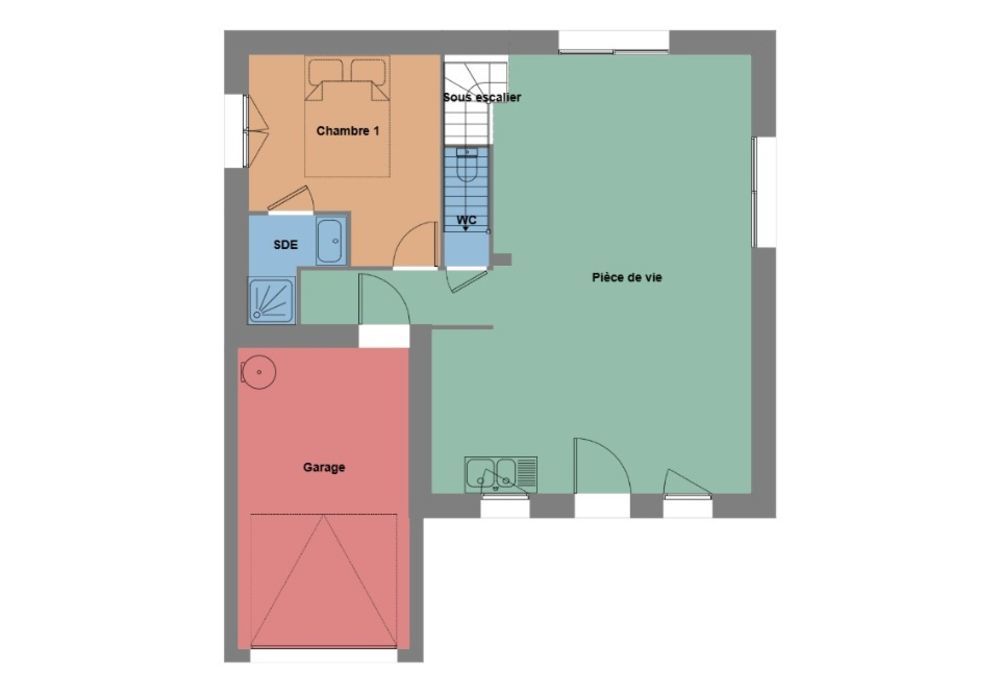
Talensac : maison F5 (102 m²) à vendre IDÉALEMENT SITUÉE - MAISON 5 PIÈCES NEUVE En vente : à 45 km de la Manche et à quelques kilomètres de Rennes, idéalement située dans Talensac (35160), votre agence Maisons de l'Avenir Cesson-Sévigné est ravie de vous présenter cette maison de 5 pièces de 102 m² et de 504 m² de terrain. C'est une maison de 2 niveaux. Son intérieur comporte quatre chambres, une cuisine et deux salles de bains. Cette maison est neuve. Le bien se trouve dans un quartier prisé. Il y a l'École Primaire Publique le Chat Perché à moins de 10 minutes à pied et deux crèches. Niveau transports, on trouve les gares Montfort-sur-Meu, Breteil et L'Hermitage-Mordelles à moins de 10 minutes en voiture. Les nationales N24 et N12 sont accessibles à moins de 8 km. Il y a un tennis, une boulangerie et une boucherie-charcuterie à quelques minutes. Il est proposé à l'achat pour 255 400 €. N'hésitez pas à prendre contact avec notre constructeur (Dimitri MESAS : ) pour toute information sur la maison, sur les démarches à suivre ou sur les modalités de vente. Maisons de l'Avenir Cesson-Sévigné vous accompagne à toutes les étapes de l'achat et dans tous vos projets immobiliers. Nos offres de terrains sont proposées en collaboration avec nos partenaires fonciers pour des maisons dans le cadre de la loi du 10/12/1990, selon disponibilité. Surface habitable : 102m2. Nombre de pièces : 5. Nombre de chambres : 4. Prix terrain seul : 79128 euros. Maisons de l’Avenir, constructeur de maisons individuelles, propose en collaboration avec ses partenaires fonciers, une sélection de terrains constructibles, selon disponibilité, pour la construction de maisons neuves définies par le constructeur, avec un contrat de construction de maison individuelle, dans le cadre de la loi du 19/12/1990. Prix net, hors frais notariés, d'enregistrement et de publicité foncièreTerrain proposé au prix de : 79 128 €Maison proposée au prix de : 176 272 €Etiquette énergie : A. Assurances et garanties du constructeur (RC professionnelle, décennale, dommage ouvrage, Garantie de livraison à prix et délai convenu). MAISONS DE L'AVENIR 33, route de Fougères 35510 Cesson-Sévigné Référence : DM2303733_3 Bien En copropriété : non

Informations clés

  • Prix 255 400 €
  • Référence ParuVendu 1005371_1005127_3542061
  • Nombre de pièces 5 pièces
  • Surface 102 m²
  • Date DPE 01/01/1970
  • Classe énergie  A
  • Indice d’émissions de gaz à effet de serre  NC