Maison - 5 pièce(s) - 111 m² Talensac

PreviousNext

Description

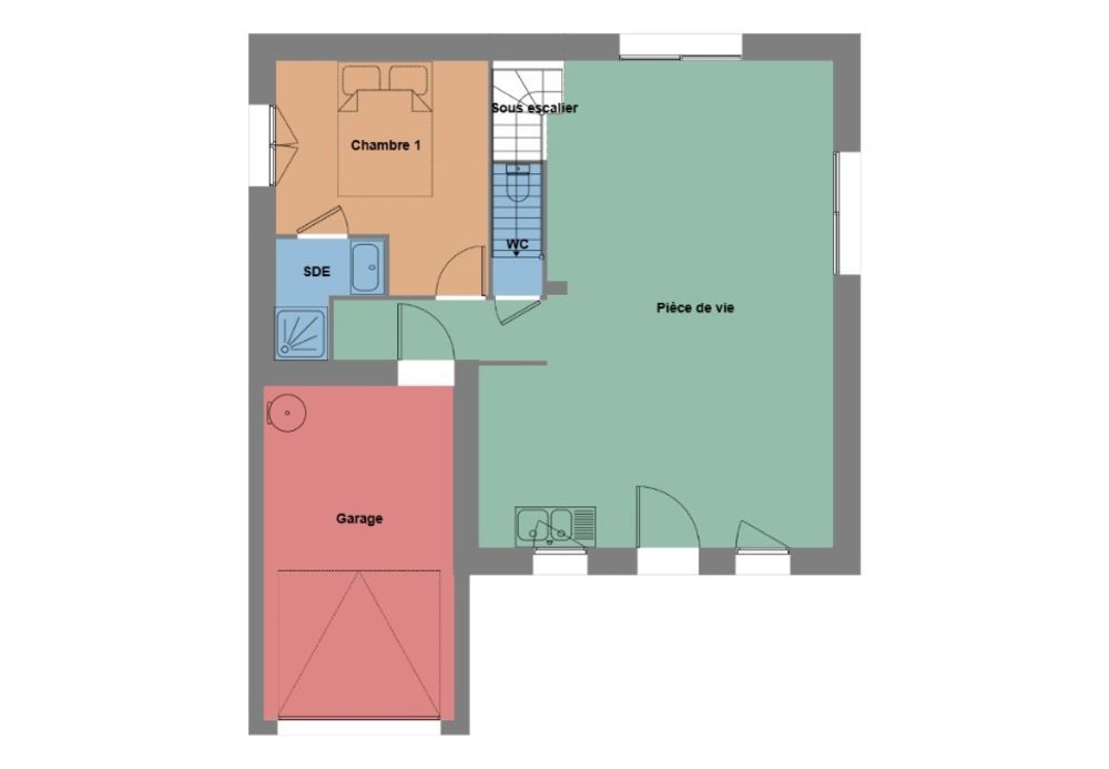
Maison F5 (111 m²) à vendre à Talensac IDÉALEMENT SITUÉE - MAISON 5 PIÈCES NEUVE En vente : à 45 km de la Manche et à quelques kilomètres de Rennes, idéalement située dans Talensac (35160), nous vous proposons cette maison de 5 pièces de 111 m². Il s'agit d'une maison de 2 niveaux. Elle propose quatre chambres, une cuisine et deux salles de bains. Cette maison est neuve. Le terrain du bien s'étend sur 271 m². Ce bien est situé dans un quartier convoité. Il y a l'École Primaire Publique le Chat Perché à moins de 10 minutes à pied et deux structures d'accueil pour les enfants en bas âge. Niveau transports, on trouve trois gares (Montfort-sur-Meu, Breteil et L'Hermitage-Mordelles) à moins de 10 minutes en voiture. Les nationales N24 et N12 sont accessibles à moins de 8 km. Il y a un tennis, une boulangerie et une boucherie-charcuterie à proximité. Il est à vendre pour la somme de 233 500 €. Contactez Dimitri MESAS () pour plus de renseignements sur la maison ou sur les modalités de vente. Maisons de l'Avenir Cesson-Sévigné est là pour vous accompagner à toutes les étapes de votre projet. Nos offres de terrains sont proposées en collaboration avec nos partenaires fonciers pour des maisons dans le cadre de la loi du 10/12/1990, selon disponibilité. Surface habitable : 111m2. Nombre de pièces : 5. Nombre de chambres : 4. Prix terrain seul : 43524 euros. Maisons de l’Avenir, constructeur de maisons individuelles, propose en collaboration avec ses partenaires fonciers, une sélection de terrains constructibles, selon disponibilité, pour la construction de maisons neuves définies par le constructeur, avec un contrat de construction de maison individuelle, dans le cadre de la loi du 19/12/1990. Prix net, hors frais notariés, d'enregistrement et de publicité foncièreTerrain proposé au prix de : 43 524 €Maison proposée au prix de : 189 976 €Etiquette énergie : A. Assurances et garanties du constructeur (RC professionnelle, décennale, dommage ouvrage, Garantie de livraison à prix et délai convenu). MAISONS DE L'AVENIR 33, route de Fougères 35510 Cesson-Sévigné Référence : DM2303714_3 Bien En copropriété : non

Informations clés

  • Prix 233 500 €
  • Référence ParuVendu 1005371_1005127_3542056
  • Nombre de pièces 5 pièces
  • Surface 111 m²
  • Date DPE 01/01/1970
  • Classe énergie  A
  • Indice d’émissions de gaz à effet de serre  NC