Maison - 6 pièce(s) - 105 m² Vermelles

PreviousNext

Description

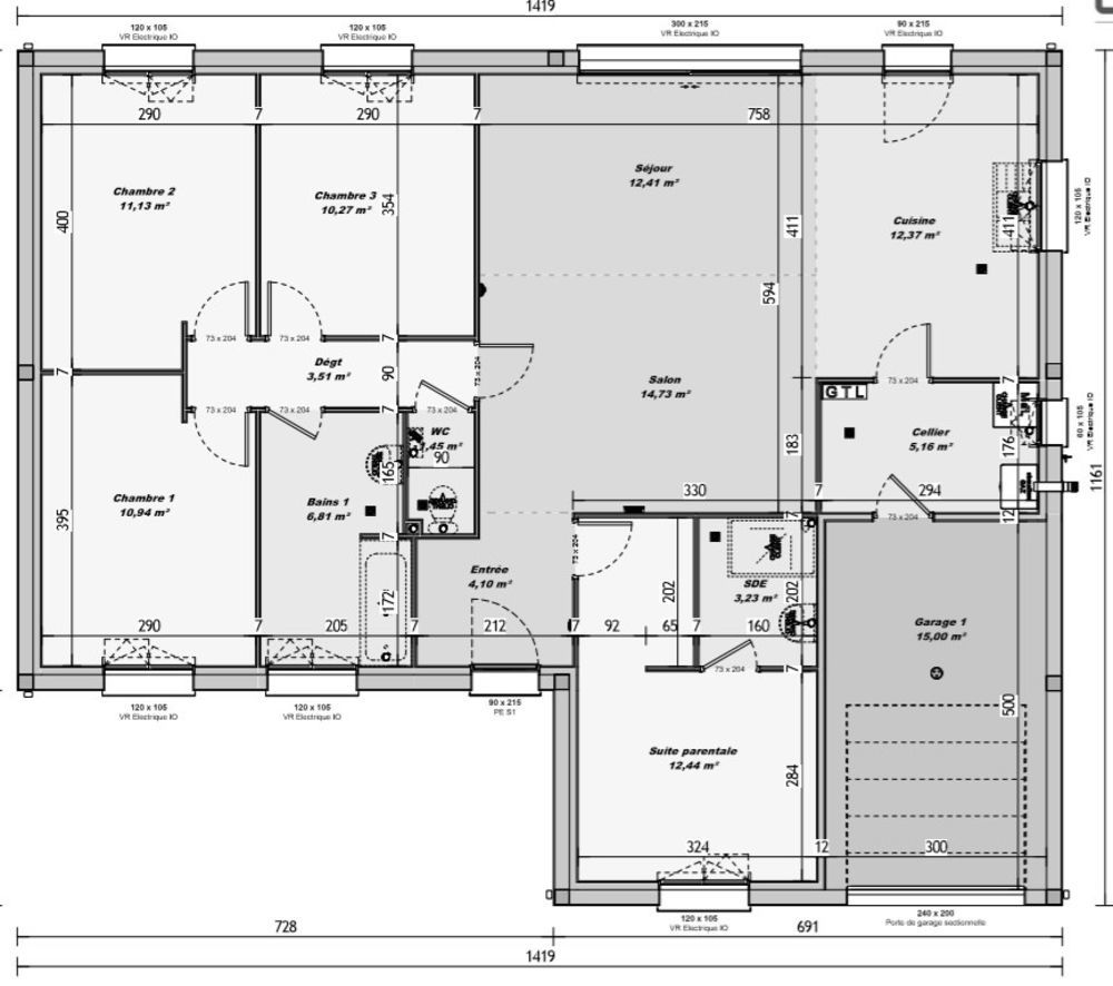
Vermelles : maison de 6 pièces (105 m²) à vendre Emplacement privilégié -  À découvrir à Vermelles (62980) : maison neuve 6 pièces en vente. Surface de 105 m² et 744 m² de terrain. Elle se divise en quatre chambres, une cuisine et deux salles de bains. À dix minutes : gares, établissements scolaires, tennis, bibliothèque, commerces, boulangerie et bureau de poste. Autoroutes et nationales à 10 km. Belgique à 28 km. Lille à 26 km. Cette maison de 6 pièces est proposée à l'achat pour 298 000 €. N'hésitez pas à prendre contact avec notre agence (Sylvaine CHARLET : ) pour toute question sur la maison, sur les modalités de vente ou sur les démarches à suivre. Maisons France Confort Hénin-Beaumont vous accompagne à toutes les étapes de votre projet et dans tous vos projets immobiliers. Nos offres de terrains sont proposées en collaboration avec nos partenaires fonciers pour des maisons dans le cadre de la loi du 10/12/1990, selon disponibilité. Surface habitable : 105m2. Nombre de pièces : 6. Nombre de chambres : 4. Prix terrain seul : 99101 euros. Terrain proposé par un partenaire foncier selon disponibilités et autorisation de publicité au prix de 99 101 €. Hors droit d'enregistrement et frais de notaire. Terrain + Maison proposés au prix de 198 899 € (Hors branchements et raccordements, papiers peints, peintures, revêtement de sol dans les chambres. Tarif modifiable sans préavis). Etiquette énergie : A. Différents modèles disponibles pour ce terrain. Assurances et garanties du constructeur (RC professionnelle, décennale, dommage ouvrage, garantie de remboursement de l'acompte, livraison à prix et délai convenu) : HEXAOM Services est enregistré auprès de l'ORIAS en tant que Courtier en financement, Niveau 1, sous le numéro 14001345. MAISONS FRANCE CONFORT Chemin de Noyelles 62110 Hénin-Beaumont Référence : SC2306843_2 Bien En copropriété : non

Informations clés

  • Prix 298 000 €
  • Référence ParuVendu 1037149_1005119_3540007
  • Nombre de pièces 6 pièces
  • Surface 105 m²
  • Date DPE 01/01/1970
  • Classe énergie  A
  • Indice d’émissions de gaz à effet de serre  NC