Maison - 7 pièce(s) - 150 m² Voves

PreviousNext

Description

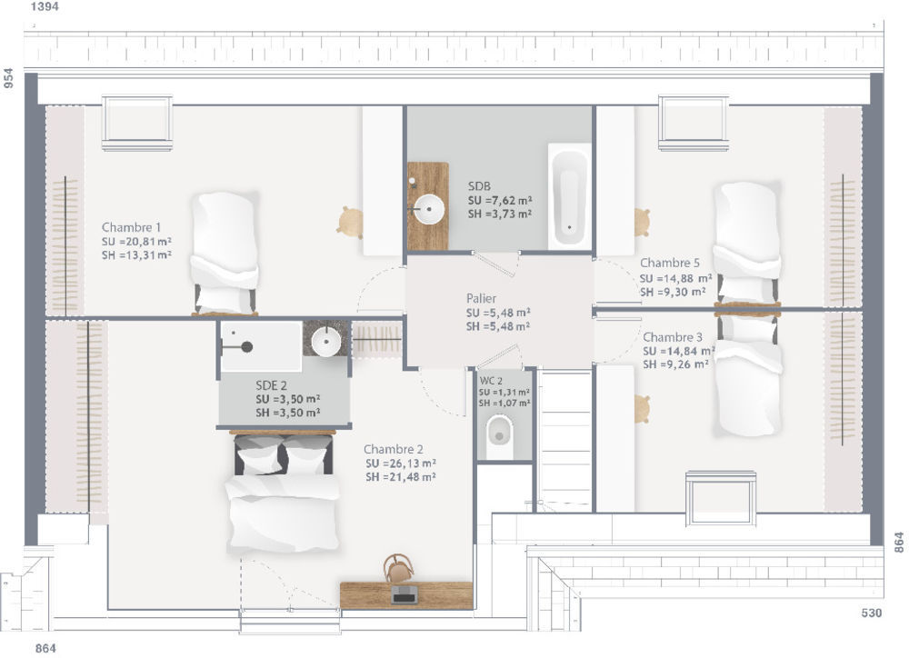
VENTE d'une maison de 7 pièces (150 m²) à Voves Emplacement privilégié -  À découvrir à Voves (28150) : maison neuve 7 pièces à vendre. 2 niveaux, surface de 150 m² sur 495 m² de terrain. Son intérieur compte cinq chambres, une cuisine et deux salles de bains. À dix minutes : gare (Voves), établissements scolaires, bibliothèque, tennis, commerces, boulangeries, supermarché, bureau de poste et supérette. Marché Place Maunoury le mardi matin. Nationale N154 accessible à 7 km. Chartres à 22 km. Cette maison de 7 pièces est à vendre pour la somme de 328 828 €. N'hésitez pas à prendre contact avec Enzo PINTO () pour tout renseignement sur la maison, sur les modalités de vente ou sur les démarches à suivre. Annonce proposée par un Agent Commercial Partenaire. Nos offres de terrains sont proposées en collaboration avec nos partenaires fonciers pour des maisons dans le cadre de la loi du 10/12/1990, selon disponibilité. Surface habitable : 150m2. Nombre de pièces : 7. Nombre de chambres : 5. Prix terrain seul : 45300 euros. Terrain proposé par un partenaire foncier selon disponibilités et autorisation de publicité au prix de 45 300 €. Hors droit d'enregistrement et frais de notaire. Maison proposée, avec un contrat de construction de maison individuelle, dans le cadre de la loi du 19/12/1990, au prix de 283 528 € (Hors branchements et raccordements, papiers peints, peintures, revêtement de sol dans les chambres, qui sont chiffrés dans les travaux qui restent à charge du client. Tarif modifiable sans préavis). Étiquette énergie : A. Différents modèles disponibles pour ce terrain. Assurances et garanties du constructeur comprises (RC professionnelle, décennale, dommage ouvrage). MAISONS FRANCE CONFORT RN 10 28630 Nogent-le-Phaye Référence : OPB2318695_6 Bien En copropriété : non

Informations clés

  • Prix 328 828 €
  • Référence ParuVendu 1063041_1005119_3565980
  • Nombre de pièces 7 pièces
  • Surface 150 m²
  • Date DPE 01/01/1970
  • Classe énergie  A
  • Indice d’émissions de gaz à effet de serre  NC