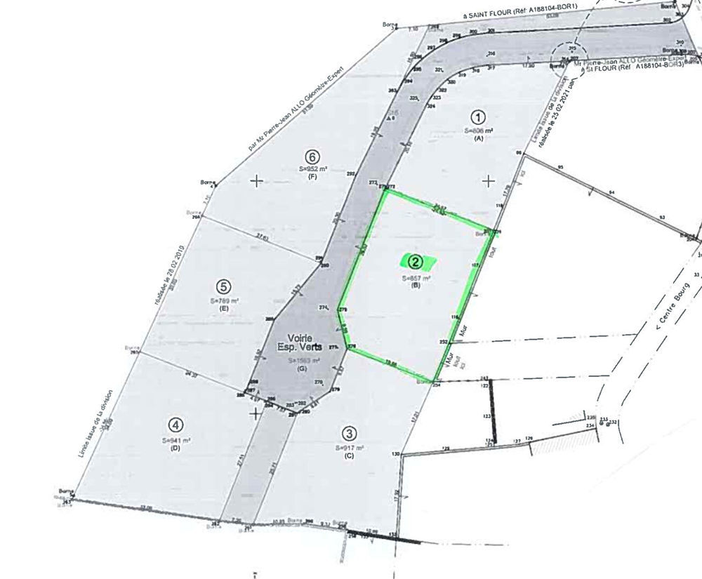
Terrain Lieutades 857 m2 Lieutadès

PreviousNext

Description

Dans le village de LIEUTADES (Cantal), belle parcelle de terrain constructible d'une superficie totale de 857 m2, dans un petit lotissement offrant une belle vue sur un joli paysage de moyenne montagne. Vous apprécierez le calme et le charme des lieux, entre plateaux de l'Aubrac et vallée de la Truyère. A noter également le village de CHAUDES-AIGUES, à 15 mn et celui de LAGUIOLE, à 20 mn, où vous trouverez tous les services, écoles et commerces nécessaires. Ce terrain est exclusivement à vendre par Laforêt en mandat Favoriz*. Envie d'en savoir plus sur ce bien? Prenez contact avec votre agence Laforêt. Surface terrain : 857 Année de construction : 0 Numéro de mandat : 1422 Précision localisation : Sud Cantal (Chaudes-Aigues, Lieutades...) Bien En copropriété : Non Procédure sur le Syndicat des copropriétaires : NC

Informations clés

  • Prix 14 313 €
  • Référence ParuVendu 21675719_1706
  • Surface 857 m²
  • Date DPE 01/01/1970
  • Classe énergie  NC
  • Indice d’émissions de gaz à effet de serre  NC
  • Ce bien fait l'objet d'un état des risques. Les informations sur les risques auxquels ce bien est exposé sont disponibles sur le site Géorisques : https://www.georisques.gouv.fr
  • Date ERP 01/08/2023