Terrains à bâtir dans lotissement, Sainte Marie 269 m² à 406 m² Sainte-Marie

PreviousNext

Description

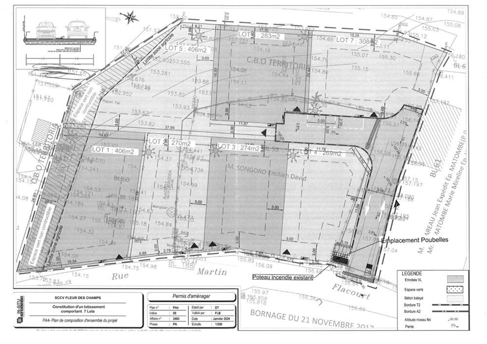
Découvrez ce nouveau lotissement résidentiel situé à Sainte-Marie, dans un environnement calme et verdoyant, à proximité des commodités, des axes principaux et à seulement quelques minutes du centre-ville. 7 parcelles à bâtir, entièrement viabilisées, terrains plats allant de 269 m² à 406 m², idéales pour la construction de votre maison principale ou d'un projet locatif. Les lots 5, 6 et 7 bénéficient d'une vue dégagée sur les champs de canne et la mer, offrant un cadre de vie paisible et agréable. Livraison du lotissement : décembre 2025 Lot 1: 406m² 232 200 euros FAI Lot 2: 270m² 157 400 euros FAI Lot 3: 274m² 159 600 euros FAI Lot 4: 269m² 156 850 euros FAI Lot 5: 406m² 232 200 euros FAI Lot 6: 283m² 155 650 euros FAI Lot 7: 308m² 178 300 euros FAI ZONE PLU UD La hauteur maximale des constructions est limitée à: - 8,00 mètres à l'égout du toit - 11,00 mètres au faîtage - 10,00 mètres à l'acrotère en cas de toiture-terrasse Emprise au sol maximale : 50 % de l'unité foncière Espace libre paysager : minimum 25 % de la surface du terrain, avec 1 arbre haute-tige par 100 m², au moins 1 arbre par lot Perméabilité du sol : minimum 30 % de la parcelle Pour plus de renseignements ou pour organiser une visite, contactez-nous ou par mail à . Agent commercial Benjamin SGRO (6.02 % honoraires TTC à la charge de l'acquéreur.) Surface terrain : 269 Numéro de mandat : BS7465LC Précision localisation : Nord Honoraires à la charge de : Acquéreur Pourcentage des Honoraires à la charge de l'Acquéreur : 6.02 % Prix net vendeur : 147950 euros Bien En copropriété : Non Procédure sur le Syndicat des copropriétaires : NC

Informations clés

  • Prix 156 850 €
  • Référence ParuVendu 59499855_BS7465LC
  • Surface 269 m²
  • Date DPE 01/01/1970
  • Classe énergie  NC
  • Indice d’émissions de gaz à effet de serre  NC