Demeure de prestige Pinsaguel 16 pièce(s) Pinsaguel

PreviousNext

Description

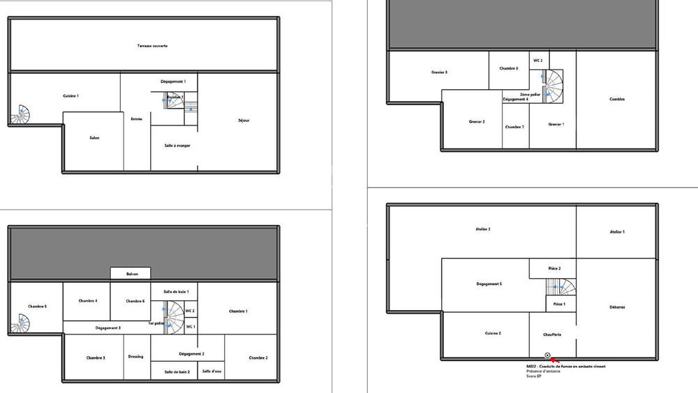
Domaine d'exception à vendre à Pinsaguel 31120 au bord de la Garonne : Rare sur le secteur superbe propriété de prestige située dans un environnement naturel privilégié comprenant une maison de maître élevée sur cave d'un rez de chaussée de deux étages et de greniers au dessus ainsi que de nombreux bâtiments d'exploitation et d'habitation parc jardin et terres Surface habitable très généreuse avec grande hauteur sous plafond charme de l'ancien parquet massif carrelage d'époque cheminées en granit Sous sol de 377,6 m2 Rez de chaussée 209,75 m2 avec vaste dégagement bureau salon lumineux de plus de 70 m2 cuisine de 43 m2 bureau de 30 m2 wc Véranda de 134,39 m2 avec immense cheminée et vue sur le terrain arboré Premier étage 202,55 m2 comprenant 5 chambres 3 salles de bains 2 wc et deux pièces de 34 et 23 m2 Deuxième étage 103,83 m2 avec 2 chambres wc et 3 combles aménageables Emprise bâtie 1028 m2 Dépendances extérieures clapier 15 m2 garage 30 m2 second clapier 17 m2 surface ouverte 14,46 m2 grange 30 m2 chenil Total dépendances 107,16 m2 Terrain exceptionnel de 248 000 m2 dont un parc très arboré avec arbres centenaires d'environ 25 000 m2 Demeure de caractère à fort potentiel gros travaux à prévoir idéale résidence de prestige projet familial ou d'exploitation. Sébastien BORG (EI) Agent Commercial - Numéro RSAC : 432 536 324 - TOULOUSE. Surface terrain : 24800 Numéro de mandat : 2448 Honoraires à la charge de : Vendeur Bien En copropriété : Non Procédure sur le Syndicat des copropriétaires : NC

Informations clés

  • Prix 895 000 €
  • Référence ParuVendu 14232159_6669
  • Nombre de pièces 13 pièces
  • Surface 1028 m²
  • Date DPE 01/01/1970
  • Classe énergie  NC
  • Indice d’émissions de gaz à effet de serre  NC